開発センタービル 902物件画像数9周辺画像数0動画数09.9万円敷金9.9万円礼金19.8万円保証金なし使用部分面積内芯 46.28㎡坪数13.99坪平米単価駐車場なし物件種目事務所(一部)築年月1987年7月(築38年5ヶ月)所在地神戸市中央区古湊通1丁目交通JR神戸線(神戸~姫路) 神戸駅 徒歩4分不動産会社:サン・ルーチェ山陽電鉄本線 / 大蔵谷 徒歩 8分詳細を見るとりあえず保存お問合せ(無料)
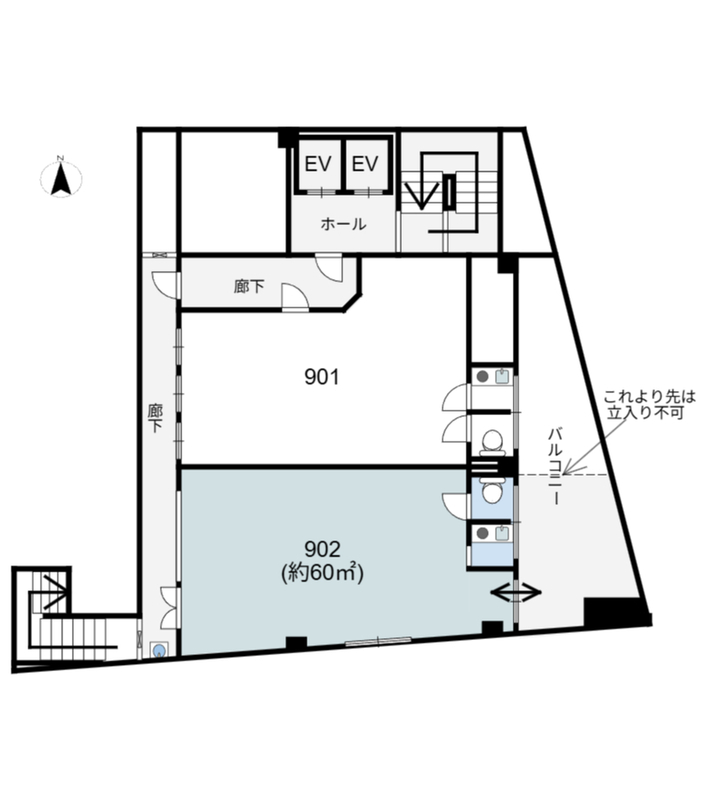
オールドブライト 902物件画像数13周辺画像数0動画数020.46万円管理費等:36,300円敷金1ヶ月礼金3ヶ月保証金なし使用部分面積60㎡坪数18.14坪平米単価駐車場なし物件種目店舗・事務所(一部)築年月1969年12月24日(築56年0ヶ月)所在地神戸市中央区東町交通JR神戸線(大阪~神戸) 三ノ宮駅 徒歩9分阪急神戸本線 神戸三宮駅 徒歩9分阪神本線 神戸三宮駅 徒歩10分不動産会社:MIRAI不動産(株)大阪メトロ御堂筋線 / 西中島南方 徒歩 7分詳細を見るとりあえず保存お問合せ(無料)
オールドブライト 901物件画像数12周辺画像数0動画数016.39万円管理費等:29,700円敷金1ヶ月礼金3ヶ月保証金なし使用部分面積48㎡坪数14.51坪平米単価駐車場なし物件種目店舗・事務所(一部)築年月1969年12月24日(築56年0ヶ月)所在地神戸市中央区東町交通JR神戸線(大阪~神戸) 三ノ宮駅 徒歩9分阪急神戸本線 神戸三宮駅 徒歩9分阪神本線 神戸三宮駅 徒歩10分不動産会社:MIRAI不動産(株)大阪メトロ御堂筋線 / 西中島南方 徒歩 7分詳細を見るとりあえず保存お問合せ(無料)
オールドブライト 804物件画像数10周辺画像数0動画数06.16万円管理費等:25,300円敷金5万円礼金3ヶ月保証金なし使用部分面積30.92㎡坪数9.35坪平米単価駐車場なし物件種目店舗・事務所(一部)築年月1969年12月24日(築56年0ヶ月)所在地神戸市中央区東町交通JR神戸線(大阪~神戸) 三ノ宮駅 徒歩9分阪急神戸本線 神戸三宮駅 徒歩9分阪神本線 神戸三宮駅 徒歩10分不動産会社:MIRAI不動産(株)大阪メトロ御堂筋線 / 西中島南方 徒歩 7分詳細を見るとりあえず保存お問合せ(無料)