NEW
オールドブライト 902印刷するおすすめポイント
20.46万円 管理費等:36,300円 | 敷金1ヶ月 礼金3ヶ月 保証金なし |
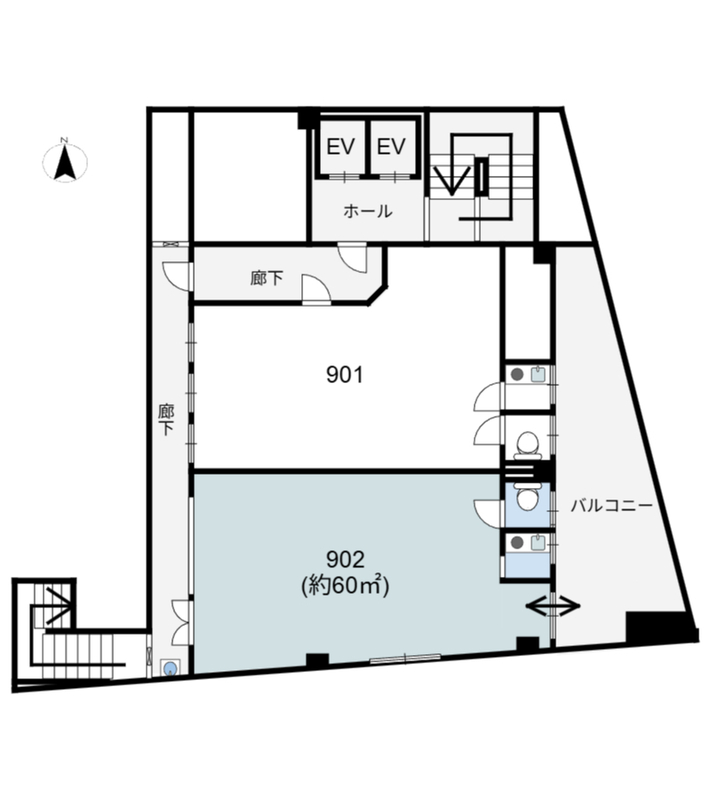
使用部分面積60㎡ 坪数18.14坪 坪単価1.03万円/坪/坪 | 駐車場なし 物件種目店舗・事務所(一部) 築年月1969年12月24日(築56年0ヶ月) |
所在地神戸市中央区東町 | |
交通
| |
NEW
オールドブライト 902印刷するおすすめポイント
20.46万円 管理費等:36,300円 | 敷金1ヶ月 礼金3ヶ月 保証金なし |
使用部分面積60㎡ 坪数18.14坪 坪単価1.03万円/坪/坪 | 駐車場なし 物件種目店舗・事務所(一部) 築年月1969年12月24日(築56年0ヶ月) |
所在地神戸市中央区東町 | |
交通
| |
JR神戸線(大阪~神戸) 三ノ宮駅 徒歩9分
阪急神戸本線 神戸三宮駅 徒歩9分
阪神本線 神戸三宮駅 徒歩10分
※地図上に表示される家マークのアイコンは付近住所に所在することを表すものであり、実際の物件所在地とは異なる場合がございます。必ず不動産会社におたずねください。

取引態様:専任媒介
大阪府知事免許(2) 第0060958号
所属協会:(公社)全日本不動産協会
公正取引協議会:不動産公正取引協議会
スマートフォンで
この不動産会社の情報を
ご覧になれます
※携帯電話ではご覧いただけません。
JR神戸線(大阪~神戸) 三ノ宮駅 徒歩9分
阪急神戸本線 神戸三宮駅 徒歩9分
阪神本線 神戸三宮駅 徒歩10分
(06-6829-7160)