銚子市小畑新町 中古戸建印刷する
おすすめポイント◆犬吠埼灯台まで車7分!銚子の海近ライフ! ◆コンビニ徒歩8分・スーパー車7分で生活便利! ◆リフォームして移住・投資・別荘にオススメ◎
120万円 | 土地面積公簿 259.96㎡ 私道負担面積 土地権利所有権 |
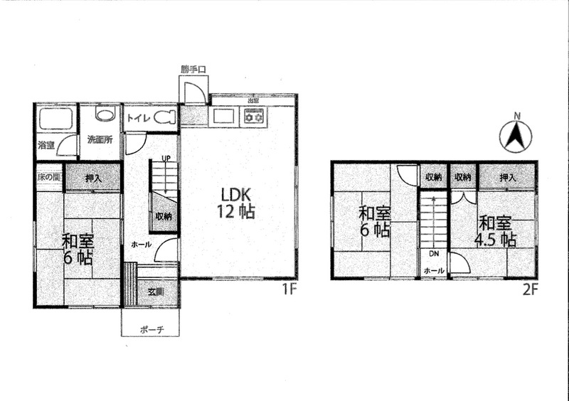
間取3LDK 建物面積内芯 72.03㎡ 構造木造 | 物件種目戸建住宅 築年月1980年7月17日(築45年8ヶ月) |
所在地銚子市小畑新町 | |
交通
| |
おすすめポイント◆犬吠埼灯台まで車7分!銚子の海近ライフ! ◆コンビニ徒歩8分・スーパー車7分で生活便利! ◆リフォームして移住・投資・別荘にオススメ◎
120万円 | 土地面積公簿 259.96㎡ 私道負担面積 土地権利所有権 |
間取3LDK 建物面積内芯 72.03㎡ 構造木造 | 物件種目戸建住宅 築年月1980年7月17日(築45年8ヶ月) |
所在地銚子市小畑新町 | |
交通
| |
銚子電鉄線 西海鹿島駅 徒歩11分
※地図上に表示される家マークのアイコンは付近住所に所在することを表すものであり、実際の物件所在地とは異なる場合がございます。必ず不動産会社におたずねください。

取引態様:一般媒介
国土交通大臣免許(1)第0010509号
所属協会:(公社)全日本不動産協会
公正取引協議会:不動産公正取引協議会
スマートフォンで
この不動産会社の情報を
ご覧になれます
※携帯電話ではご覧いただけません。
おすすめポイント◆犬吠埼灯台まで車7分!銚子の海近ライフ! ◆コンビニ徒歩8分・スーパー車7分で生活便利! ◆リフォームして移住・投資・別荘にオススメ◎
1 / 20
銚子電鉄線 西海鹿島駅 徒歩11分
(03-3411-5575)