稲沢市下津本郷町 戸建
おすすめポイント■木が見える内装、シンプルで機能的かつ美しい木造住宅
■どこからでも光と風を感じる設計で、明るく快適な生活ができます
■ロフト収納もあり、収納容量にも余裕があります
■南側庭の緑豊かな木、周りは田園風景でのんびり暮らせる住環境
■JR稲沢駅徒歩17分、リーフウォーク稲沢徒歩19分と便利な立地
※市街化調整区域の新宅地のため、再建築には建築主の資格が必要になります
※建物未登記のため、売買時に登記します

門より玄関へ

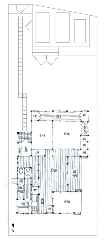
間取図と配置図

門より玄関へ

間取図と配置図
- 価格
- 1,550万円
- 間取り
- 3LDK
- 建物面積
- 壁芯 97.71㎡
- 土地面積
- 公簿 350.86㎡
- 私道負担面積
- 物件種目
- 戸建住宅
- 築年月
- 1994年6月30日(築31年8ヶ月)
- 建物構造
- 木造
- 土地権利
- 所有権
- 交通
JR東海道本線(浜松~岐阜) 稲沢駅 徒歩17分
名鉄名古屋本線 国府宮駅 徒歩41分
- 所在地
- 敷金/保証金
- なし /
- 借地期間
- 地代(月額)
- 権利金
- その他一時金
- 維持費等
- 間取り(内訳)
- 階建/階
- 1階建/
- 駐車場
- 空きあり
- 接道状況
- 南向き25m 公道 接面11.5m
- 小学校
- 下津小学校(距離:963m)
- 中学校
- 都市計画
- 調整
- 用途地域
- 無指定
- 建ぺい率
- 60%
- 容積率
- 200%
- 地勢
- 平坦
- 地目
- 宅地
- セットバック
- 不要
- 国土法届出
- 建築確認
- 設備
- プロパンガス 浄化槽 駐車場2台分 閑静な住宅街 水道公営 専用バス 専用トイレ バス・トイレ別 温水洗浄便座 浴室1坪以上 独立洗面台 洗面台 洗面所 室内洗濯機置場 ガスコンロ可 給湯 収納スペース 玄関収納 物置 フローリング 和室 庭 専用庭 日当り良好
- 建物状況調査
(インスペクション)
- 備考
- 主要採光面: 南向き
法令等制限: ※市街化調整区域の新宅地のため、再建築には建築主の資格が必要になります
■木が見える内装、シンプルで機能的かつ美しい木造住宅
■どこからでも光と風を感じる設計で、明るく快適な生活ができます
■ロフト収納もあり、収納容量にも余裕があります
■南側庭の緑豊かな木、周りは田園風景でのんびり暮らせる住環境
■JR稲沢駅徒歩17分、リーフウォーク稲沢徒歩19分と便利な立地
※市街化調整区域の新宅地のため、再建築には建築主の資格が必要になります
※建物未登記のため、売買時に登記します
- 引渡可能時期
- 相談
- 現況
- 空き
- 条件等
- 物件番号
- 72596497
- 情報公開日
- 2026/02/26
- 次回更新予定日
- 2026/03/28
この物件の周辺環境
- リーフウォーク稲沢
- MEGAドン・キホーテUNY稲沢東店
- セブンイレブン稲沢下津大門町店
- ココカラファインリーフウォーク稲沢店
- ジョーシン稲沢店
- 下津小学校
- 下津保育園
- 稲沢下津郵便局
- いちい信用金庫おりづ支店
情報提供会社
- 交通
- 名鉄津島線 / 甚目寺 徒歩 30分
- 住所
- 〒490-1114 愛知県あま市下萱津平島13番地
- TEL
- 052-756-2355
- FAX
- 052-756-2356
- 取引態様
- 専任媒介
- 免許番号
- 愛知県知事免許(8) 第0016765号
- 所属協会
- (公社)全日本不動産協会
- 公正取引協議会
- 不動産公正取引協議会
賃貸住宅を借りるなら、物件検索サイト「ラビーネット不動産」で。賃貸マンション・賃貸アパート・賃貸一戸建ての物件情報を住みたいエリア/沿線・駅から検索し、賃料/間取り/駅からの徒歩といった希望条件で絞り込むことができます。このほか、物件の探し方から契約、引越、入居時の手続まで、お部屋探しに役立つ情報が満載。このサイトは全国組織の業界団体である公益社団法人全日本不動産協会が運営する不動産情報サイトのため、安心して物件をお探しいただけます。住まい探しのことならラビーネット不動産にお任せください!