NEW
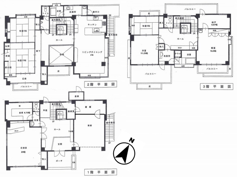
南宇和郡愛南町久良 中古戸建印刷するおすすめポイント◆土地514坪&オーシャンビューのRC造3階建大豪邸! ◆釣りとリゾートライフを満喫!移住・別荘・民泊に◎ ◆松山空港から車2時間!海までは徒歩30秒!
320万円 | 土地面積公簿 1699.94㎡ 私道負担面積 土地権利所有権 |
間取8LDK 建物面積内芯 383.65㎡ 構造鉄筋コンクリート | 物件種目戸建住宅 築年月1987年10月1日(築38年2ヶ月) |
所在地南宇和郡愛南町久良 | |
交通
| |
NEW
南宇和郡愛南町久良 中古戸建印刷するおすすめポイント◆土地514坪&オーシャンビューのRC造3階建大豪邸! ◆釣りとリゾートライフを満喫!移住・別荘・民泊に◎ ◆松山空港から車2時間!海までは徒歩30秒!
320万円 | 土地面積公簿 1699.94㎡ 私道負担面積 土地権利所有権 |
間取8LDK 建物面積内芯 383.65㎡ 構造鉄筋コンクリート | 物件種目戸建住宅 築年月1987年10月1日(築38年2ヶ月) |
所在地南宇和郡愛南町久良 | |
交通
| |
宿毛線 宿毛駅 御荘 バス38分 徒歩37分
※地図上に表示される家マークのアイコンは付近住所に所在することを表すものであり、実際の物件所在地とは異なる場合がございます。必ず不動産会社におたずねください。

取引態様:売主
国土交通大臣免許(1)第0010509号
所属協会:(公社)全日本不動産協会
公正取引協議会:不動産公正取引協議会
スマートフォンで
この不動産会社の情報を
ご覧になれます
※携帯電話ではご覧いただけません。
おすすめポイント◆土地514坪&オーシャンビューのRC造3階建大豪邸! ◆釣りとリゾートライフを満喫!移住・別荘・民泊に◎ ◆松山空港から車2時間!海までは徒歩30秒!
宿毛線 宿毛駅 御荘 バス38分 徒歩37分
(03-3411-5575)