中古戸建 枚方市池之宮1丁目印刷する
おすすめポイント当社オリジナルキャンペーン実施中!!
580万円 | 土地面積公簿 52.75㎡ 私道負担面積 土地権利所有権 |
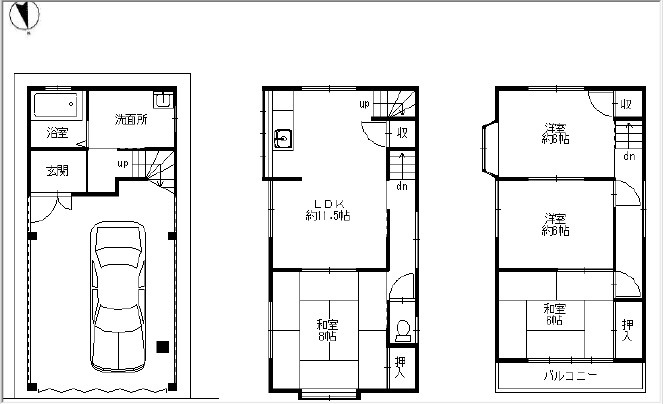
間取4LDK 建物面積壁芯 84.38㎡ 構造木造 | 物件種目戸建住宅 築年月1989年4月(築36年10ヶ月) |
所在地枚方市池之宮1丁目 | |
交通
| |
おすすめポイント当社オリジナルキャンペーン実施中!!
580万円 | 土地面積公簿 52.75㎡ 私道負担面積 土地権利所有権 |
間取4LDK 建物面積壁芯 84.38㎡ 構造木造 | 物件種目戸建住宅 築年月1989年4月(築36年10ヶ月) |
所在地枚方市池之宮1丁目 | |
交通
| |
京阪交野線 星ヶ丘駅 徒歩22分
※地図上に表示される家マークのアイコンは付近住所に所在することを表すものであり、実際の物件所在地とは異なる場合がございます。必ず不動産会社におたずねください。

取引態様:仲介
大阪府知事免許(3) 第0055801号
所属協会:(公社)全日本不動産協会
公正取引協議会:不動産公正取引協議会
地域密着・信頼と安心
スマートフォンで
この不動産会社の情報を
ご覧になれます
※携帯電話ではご覧いただけません。
おすすめポイント当社オリジナルキャンペーン実施中!!
京阪交野線 星ヶ丘駅 徒歩22分
(072-809-5550)