熊谷市新堀中古戸建て印刷する
おすすめポイント
2,280万円 | 土地面積公簿 206.21㎡ 私道負担面積 土地権利所有権 |
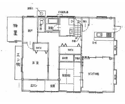
間取7SLDK 建物面積内芯 187.97㎡ 構造木造 | 物件種目戸建住宅 築年月2002年3月6日(築23年11ヶ月) |
所在地熊谷市新堀 | |
交通
| |
おすすめポイント
2,280万円 | 土地面積公簿 206.21㎡ 私道負担面積 土地権利所有権 |
間取7SLDK 建物面積内芯 187.97㎡ 構造木造 | 物件種目戸建住宅 築年月2002年3月6日(築23年11ヶ月) |
所在地熊谷市新堀 | |
交通
| |
JR高崎線 籠原駅 徒歩30分
※地図上に表示される家マークのアイコンは付近住所に所在することを表すものであり、実際の物件所在地とは異なる場合がございます。必ず不動産会社におたずねください。

取引態様:専任媒介
東京都知事免許(5) 第0079639号
所属協会:(公社)全日本不動産協会
公正取引協議会:不動産公正取引協議会
首都圏内外等、エリアを広く不動産案件に関するご相談をお受けしています。
スマートフォンで
この不動産会社の情報を
ご覧になれます
※携帯電話ではご覧いただけません。
JR高崎線 籠原駅 徒歩30分
(03-3512-0750)