スウェーデンハウス 東京 羽村市双葉町3丁目印刷する
おすすめポイント
4,700万円 | 土地面積公簿 152.15㎡ 私道負担面積なし 土地権利所有権 |
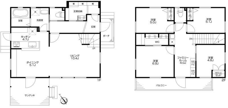
間取4SLDK 建物面積壁芯 116.37㎡ 構造木造 | 物件種目戸建住宅 築年月2005年12月8日(築20年3ヶ月) |
所在地羽村市双葉町3丁目 | |
交通
| |
おすすめポイント
4,700万円 | 土地面積公簿 152.15㎡ 私道負担面積なし 土地権利所有権 |
間取4SLDK 建物面積壁芯 116.37㎡ 構造木造 | 物件種目戸建住宅 築年月2005年12月8日(築20年3ヶ月) |
所在地羽村市双葉町3丁目 | |
交通
| |
JR八高線(八王子~高麗川) 東福生駅 徒歩20分
※地図上に表示される家マークのアイコンは付近住所に所在することを表すものであり、実際の物件所在地とは異なる場合がございます。必ず不動産会社におたずねください。
取引態様:専任媒介
東京都知事免許(6) 第0074303号
所属協会:(公社)全日本不動産協会
公正取引協議会:不動産公正取引協議会
スマートフォンで
この不動産会社の情報を
ご覧になれます
※携帯電話ではご覧いただけません。
1 / 6
JR八高線(八王子~高麗川) 東福生駅 徒歩20分
(0120-899-123)