津山市加茂町塔中 2階建中古住宅 8DK
おすすめポイント田舎暮らしを満喫できる日当たり良好な2階建て8DK中古住宅★周囲に家が少なく東から気持ちの良い風が吹き抜ける開放的な立地。収納豊富で部屋数も多くトイレや洗面台も2ヶ所あるので大家族におすすめ!広い庭は車3台駐車可能、さらにガーデニングなども楽しめます。キッチンは掃除のしやすいIHで、便利な食洗器付!脱衣所、お風呂、トイレが広めの設計で、車いすをご利用の方にも安心してお使いいただけます。オール電化です!

玄関

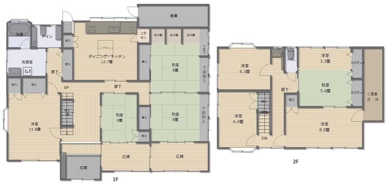
間取り

1F和室

1F和室

1F和室

1F和室

縁側

1F洋室

1F洋室

1F

2F洋室

2F洋室

2F和室

2F 洗面台

2F

庭

庭

玄関

間取り
- 価格
- 1,280万円
- 間取り
- 8DK
- 建物面積
- 壁芯 234.78㎡
- 土地面積
- 公簿 582.27㎡
- 私道負担面積
- なし
- 物件種目
- 戸建住宅
- 築年月
- 1996年6月(築29年9ヶ月)
- 建物構造
- 木造
- 土地権利
- 所有権
- 交通
JR因美線 美作加茂駅 加茂支所 バス5分 徒歩240分
- 所在地
- 敷金/保証金
- なし /
- 借地期間
- 地代(月額)
- 権利金
- その他一時金
- 維持費等
- 間取り(内訳)
- DK 1階 12.7帖 洋室 1階 11.8帖 和室 1階 6帖 和室 1階 8帖 2室 洋室 2階 6.4帖 洋室 2階 6.3帖 洋室 2階 8.9帖 洋室 2階 3.3帖 和室 2階 5.4帖
- 階建/階
- 2階建/
- 駐車場
- 空きあり
- 接道状況
- 南西向き5.5m 公道 接面23m
- 小学校
- 加茂小学校(距離:382m)
- 中学校
- 加茂中学校(距離:732m)
- 都市計画
- 区域外
- 用途地域
- 無指定
- 建ぺい率
- 容積率
- 地勢
- 地目
- 宅地
- セットバック
- 不要
- 国土法届出
- 建築確認
- 設備
- プロパンガス 排水下水 駐車場2台分 水道公営 専用バス 専用トイレ バス・トイレ別 トイレ2ヶ所 温水洗浄便座 シャワー 独立洗面台 洗面所 洗髪洗面化粧台 室内洗濯機置場 システムキッチン IHクッキングヒーター オール電化 コンロ3口以上 食器洗浄乾燥機 エコキュート エアコン 収納スペース シューズボックス 物置 照明器具 フローリング 和室 出窓 専用庭 日当り良好
- 建物状況調査
(インスペクション)
- 備考
- 法令等制限: 宅地造成工事規制区域内
- 引渡可能時期
- 即時
- 現況
- 空き
- 条件等
- 物件番号
- 69885001
- 情報公開日
- 2025/12/02
- 次回更新予定日
- 2026/04/18
この物件の周辺環境
- 加茂小学校
- 加茂中学校
- JAつやま加茂
- 津山市役所 加茂支所
- 加茂町図書館
- 加茂郵便局
- コメリハード&グリーン岡山加茂店
- 中国銀行 加茂特別出張所
情報提供会社
- 交通
- 津山線 / 津山 徒歩 15分
- 住所
- 〒708-0053 岡山県津山市細工町27
- TEL
- 0868-25-0001
- FAX
- 0868-25-0002
- 取引態様
- 一般媒介
- 免許番号
- 岡山県知事免許(9) 第0003250号
- 所属協会
- (公社)全日本不動産協会
- 公正取引協議会
- 不動産公正取引協議会
賃貸住宅を借りるなら、物件検索サイト「ラビーネット不動産」で。賃貸マンション・賃貸アパート・賃貸一戸建ての物件情報を住みたいエリア/沿線・駅から検索し、賃料/間取り/駅からの徒歩といった希望条件で絞り込むことができます。このほか、物件の探し方から契約、引越、入居時の手続まで、お部屋探しに役立つ情報が満載。このサイトは全国組織の業界団体である公益社団法人全日本不動産協会が運営する不動産情報サイトのため、安心して物件をお探しいただけます。住まい探しのことならラビーネット不動産にお任せください!