齊藤邸印刷する
おすすめポイント
3,180万円 | 土地面積公簿 225.35㎡ 私道負担面積なし 土地権利所有権 |
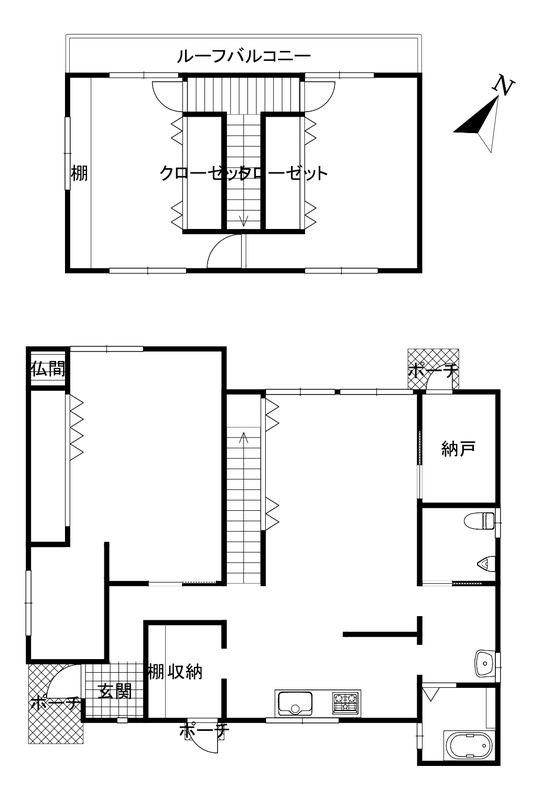
間取3SLDK 建物面積壁芯 120.3㎡ 構造木造 | 物件種目戸建住宅 築年月2016年1月20日(築10年2ヶ月) |
所在地福山市東陽台1丁目 | |
| 交通 | |
おすすめポイント
3,180万円 | 土地面積公簿 225.35㎡ 私道負担面積なし 土地権利所有権 |
間取3SLDK 建物面積壁芯 120.3㎡ 構造木造 | 物件種目戸建住宅 築年月2016年1月20日(築10年2ヶ月) |
所在地福山市東陽台1丁目 | |
| 交通 | |
※地図上に表示される家マークのアイコンは付近住所に所在することを表すものであり、実際の物件所在地とは異なる場合がございます。必ず不動産会社におたずねください。
取引態様:一般媒介
広島県知事免許(4) 第0009523号
所属協会:(公社)全日本不動産協会
公正取引協議会:不動産公正取引協議会
スマートフォンで
この不動産会社の情報を
ご覧になれます
※携帯電話ではご覧いただけません。
1 / 12
(084-948-3303)