六甲芦屋289印刷する
おすすめポイント海の見える高台に朝日の輝く物件
4,500万円 | 土地面積公簿 602.77㎡ 私道負担面積524㎡ 共有持分 1/4 土地権利所有権 |
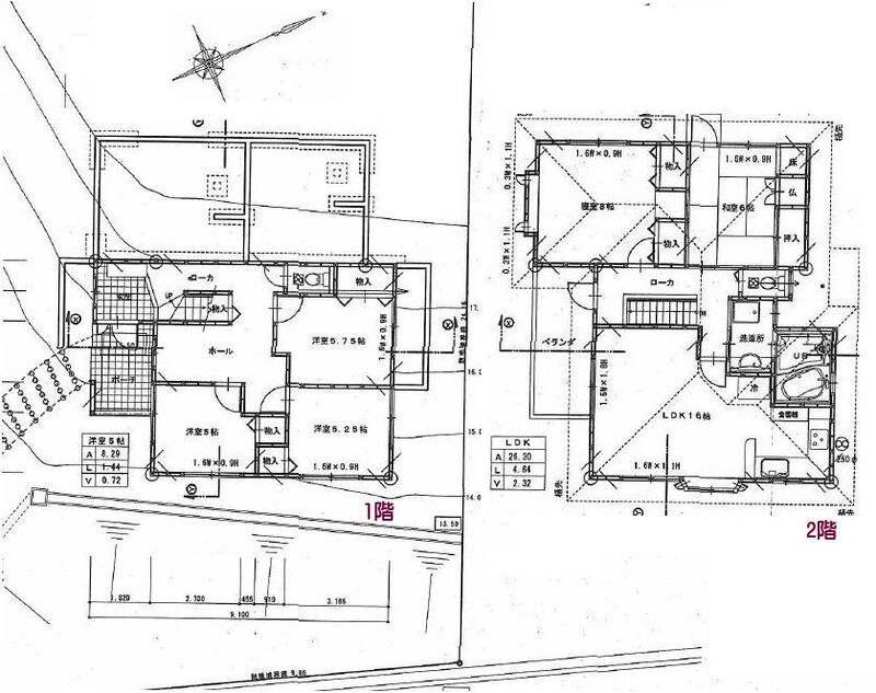
間取5LDK 建物面積内芯 124㎡ 構造木造 | 物件種目戸建住宅 築年月2002年4月26日(築23年11ヶ月) |
所在地芦屋市奥池町 | |
交通
| |
おすすめポイント海の見える高台に朝日の輝く物件
4,500万円 | 土地面積公簿 602.77㎡ 私道負担面積524㎡ 共有持分 1/4 土地権利所有権 |
間取5LDK 建物面積内芯 124㎡ 構造木造 | 物件種目戸建住宅 築年月2002年4月26日(築23年11ヶ月) |
所在地芦屋市奥池町 | |
交通
| |
阪急神戸本線 芦屋川駅 芦屋ハイランド 東おたふく山登山口 バス11分 徒歩7分
※地図上に表示される家マークのアイコンは付近住所に所在することを表すものであり、実際の物件所在地とは異なる場合がございます。必ず不動産会社におたずねください。
取引態様:専任媒介
兵庫県知事免許(6) 第0010212号
所属協会:(公社)全日本不動産協会
公正取引協議会:不動産公正取引協議会
阪急芦屋川駅最寄り駅の不動産取引は当社へお任せ下さい。
スマートフォンで
この不動産会社の情報を
ご覧になれます
※携帯電話ではご覧いただけません。
おすすめポイント海の見える高台に朝日の輝く物件
1 / 6
阪急神戸本線 芦屋川駅 芦屋ハイランド 東おたふく山登山口 バス11分 徒歩7分
(0797-38-1271)