つくば市吉沼 中古戸建印刷する
おすすめポイント新築 昭和48年1月 増築 昭和63年5月 包括承認基準9適用 どなた様でも建替えできます。
350万円 | 土地面積公簿 231㎡ 私道負担面積なし 土地権利所有権 |
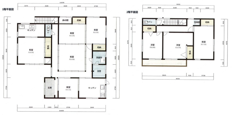
間取8K 建物面積壁芯 141㎡ 構造木造 | 物件種目戸建住宅 築年月1973年1月(築53年0ヶ月) |
所在地つくば市吉沼 | |
| 交通 | |
おすすめポイント新築 昭和48年1月 増築 昭和63年5月 包括承認基準9適用 どなた様でも建替えできます。
350万円 | 土地面積公簿 231㎡ 私道負担面積なし 土地権利所有権 |
間取8K 建物面積壁芯 141㎡ 構造木造 | 物件種目戸建住宅 築年月1973年1月(築53年0ヶ月) |
所在地つくば市吉沼 | |
| 交通 | |
※地図上に表示される家マークのアイコンは付近住所に所在することを表すものであり、実際の物件所在地とは異なる場合がございます。必ず不動産会社におたずねください。
取引態様:一般媒介
茨城県知事免許(3) 第0006819号
所属協会:(公社)全日本不動産協会
公正取引協議会:不動産公正取引協議会
明日を見据えて、今日を見つめる
スマートフォンで
この不動産会社の情報を
ご覧になれます
※携帯電話ではご覧いただけません。
おすすめポイント新築 昭和48年1月 増築 昭和63年5月 包括承認基準9適用 どなた様でも建替えできます。
(029-838-2701)