笹川字高石坊3-6印刷する
おすすめポイント
3,650万円 | 土地面積公簿 211.18㎡ 私道負担面積 土地権利所有権 |
|
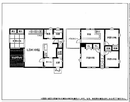
間取4LDK 建物面積内芯 111.78㎡ 構造木造 | 物件種目戸建住宅 築年月2025年5月(築0年10ヶ月) |
|
所在地郡山市安積町笹川字高石坊 |
|
| 交通 |
|
最新の空室状況や詳しい情報はこちらから!
お問合せ(無料)【お問合せ先】 (株)レイズ不動産
スマートフォンでこの物件の情報をご覧になれます
※携帯電話ではご覧いただけません。
- 交通
- 所在地
- 郡山市安積町笹川字高石坊
- 物件種目
- 戸建住宅
- 価格
- 3,650万円
- 敷金 / 保証金
- なし /
- 借地期間
- 地代(月額)
- 権利金
- その他一時金
- 維持費等
- 間取り(内訳)
- 建物面積
- 内芯 111.78㎡
- 土地面積
- 公簿 211.18㎡
- 私道負担面積
- 築年月
- 2025年5月(築0年10ヶ月)
- 階建
- 2階建
- 建物構造
- 木造
- 駐車場
- 空きあり
- 接道状況
- ニ方道路
- 小学校
- 中学校
- 都市計画
- 市街化
- 用途地域
- 1種住居
- 建ぺい率
- 60%
- 容積率
- 200%
- 地勢
- 平坦
- 地目
- 宅地
- セットバック
- 土地権利
- 所有権
- 国土法届出
- 建築確認
- 設備
- プロパンガス 排水下水 分譲タイプ トイレ2ヶ所 温水洗浄便座 追焚機能 浴室乾燥機 洗髪洗面化粧台 カウンターキッチン IHクッキングヒーター 食器洗浄乾燥機 モニタ付インターホン ウッドデッキ
- 建物状況調査
(インスペクション)
- 備考
- 施工会社: 三柏工業株式会社
- 現況
- 空き
- 引渡可能時期
- 即時
- 物件番号
- 67756732
- 情報公開日
- 2025/06/02
- 次回更新予定日
- 2026/01/01
郡山市安積町笹川字高石坊周辺の地図
地図を見る※地図上に表示される家マークのアイコンは付近住所に所在することを表すものであり、実際の物件所在地とは異なる場合がございます。必ず不動産会社におたずねください。
情報提供会社

- 交通
- 住所〒963-8025 福島県郡山市桑野4丁目1番4号
- TEL024-926-0508
- FAX024-926-0509
取引態様:一般媒介
福島県知事免許(1) 第0003622号
所属協会:(公社)全日本不動産協会
公正取引協議会:不動産公正取引協議会
スマートフォンで
この不動産会社の情報を
ご覧になれます
※携帯電話ではご覧いただけません。
賃貸住宅を借りるなら、物件検索サイト「ラビーネット不動産」で。賃貸マンション・賃貸アパート・賃貸一戸建ての物件情報を住みたいエリア/沿線・駅から検索し、賃料/間取り/駅からの徒歩といった希望条件で絞り込むことができます。このほか、物件の探し方から契約、引越、入居時の手続まで、お部屋探しに役立つ情報が満載。このサイトは全国組織の業界団体である公益社団法人全日本不動産協会が運営する不動産情報サイトのため、安心して物件をお探しいただけます。住まい探しのことならラビーネット不動産にお任せください!