東白山台2丁目 中古住宅
おすすめポイント
担当:企画担当 佐藤 hidemaru.0813.s@gmail.com まで

外観

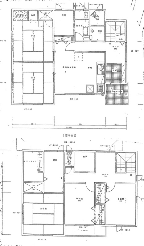
間取り図

玄関

洗面所

お風呂

リビング

トイレ1

トイレ2

車庫

外観

間取り図
- 価格
- 2,630万円
- 間取り
- 5LDK
- 建物面積
- 壁芯 142.07㎡
- 土地面積
- 公簿 406.49㎡
- 私道負担面積
- なし
- 物件種目
- 戸建住宅
- 築年月
- 1997年3月(築28年9ヶ月)
- 建物構造
- 軽量鉄骨
- 土地権利
- 所有権
- 敷金/保証金
- なし /
- 借地期間
- 地代(月額)
- 権利金
- その他一時金
- 維持費等
- 間取り(内訳)
- 階建/階
- 2階建/
- 駐車場
- 空きあり
- 接道状況
- 北東向き6m 公道 接面20m
- 小学校
- 白山台小学校(距離:300m)
- 中学校
- 都市計画
- 市街化
- 用途地域
- 1種低層
- 建ぺい率
- 50%
- 容積率
- 80%
- 地勢
- 地目
- 宅地
- セットバック
- 不要
- 国土法届出
- 建築確認
- 設備
- 都市ガス 排水下水 水道公営 専用バス 専用トイレ バス・トイレ別 トイレ2ヶ所 男女別トイレ 温水洗浄便座 シャワー 洗髪洗面化粧台 室内洗濯機置場 給湯 エアコン 灯油 収納スペース シューズボックス 物置 庭
- 建物状況調査
(インスペクション)
- 備考
- R6.12月 ボイラー(灯油)取替、2階洗面台取替、2階洋式トイレ取替、1階2階の畳取替、室内インターホンモニター新品
・現況でのお引渡しとなります。
・火災警報器がありませんので、買主様の負担で設置が必要です。
・アンテナはありません。居住中は八戸ケーブルテレビに加入していましたが、現在は撤去しております。新たにアンテナなどの設置、接続については、買主様の負担で行ってください。
・令和6年固定資産税 76,400円、契約時にかかる印紙代 10000円
他、所有権移転登記費用(司法書士様へ)がかかります。不動産業者様に仲介を依頼する場合は、仲介手数料 999,900円がかかります。
・八戸新都市地区計画の一般住宅地区(1)にあたり、建築物の敷地面積の最低限度、建築物等の壁面の位置、建築物等の形態又は意匠及び垣又は柵の構造の制限が定められています。
※不動産屋nook をとおしての契約となりますので、ご了承ください。
- 引渡可能時期
- 即時
- 現況
- 空き
- 条件等
- 物件番号
- 66003989
- 情報公開日
- 2025/02/25
- 次回更新予定日
- 2026/01/14
情報提供会社
- 交通
- JR八戸線 / 本八戸 徒歩 1分
- 住所
- 〒031-0072 青森県八戸市城下1丁目1-6
- TEL
- 0178-47-8903
- FAX
- 0178-47-8904
- 取引態様
- 売主
- 免許番号
- 青森県知事免許(7) 第0002602号
- 所属協会
- (公社)全日本不動産協会
- 公正取引協議会
- 不動産公正取引協議会
賃貸住宅を借りるなら、物件検索サイト「ラビーネット不動産」で。賃貸マンション・賃貸アパート・賃貸一戸建ての物件情報を住みたいエリア/沿線・駅から検索し、賃料/間取り/駅からの徒歩といった希望条件で絞り込むことができます。このほか、物件の探し方から契約、引越、入居時の手続まで、お部屋探しに役立つ情報が満載。このサイトは全国組織の業界団体である公益社団法人全日本不動産協会が運営する不動産情報サイトのため、安心して物件をお探しいただけます。住まい探しのことならラビーネット不動産にお任せください!