収益物件 枚方市長尾家具町1丁目印刷する
おすすめポイント当社オリジナルキャンペーン実施中!!
540万円 | 土地面積公簿 40.11㎡ 私道負担面積 土地権利所有権 |
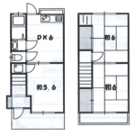
間取3DK 建物面積壁芯 51.12㎡ 構造木造 | 物件種目戸建住宅 築年月1978年7月(築47年8ヶ月) |
所在地枚方市長尾家具町1丁目 | |
交通
| |
おすすめポイント当社オリジナルキャンペーン実施中!!
540万円 | 土地面積公簿 40.11㎡ 私道負担面積 土地権利所有権 |
間取3DK 建物面積壁芯 51.12㎡ 構造木造 | 物件種目戸建住宅 築年月1978年7月(築47年8ヶ月) |
所在地枚方市長尾家具町1丁目 | |
交通
| |
京阪本線 樟葉駅 長尾家具町1丁目 バス16分 徒歩3分
※地図上に表示される家マークのアイコンは付近住所に所在することを表すものであり、実際の物件所在地とは異なる場合がございます。必ず不動産会社におたずねください。

取引態様:仲介
大阪府知事免許(3) 第0055801号
所属協会:(公社)全日本不動産協会
公正取引協議会:不動産公正取引協議会
地域密着・信頼と安心
スマートフォンで
この不動産会社の情報を
ご覧になれます
※携帯電話ではご覧いただけません。
おすすめポイント当社オリジナルキャンペーン実施中!!
1 / 3
京阪本線 樟葉駅 長尾家具町1丁目 バス16分 徒歩3分
(072-809-5550)