津山市福田下 2階建中古住宅 4LDK印刷する
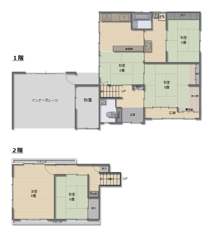
おすすめポイントお子様のいるご家庭にもお勧め!伸び伸びと生活できる165㎡の2階建て中古戸建て物件です。広々としたお風呂やお庭があり、車もインナーガレージ付なので雨の日も安心。一部リフォーム済なのでそのままお使いいただけます。
680万円 | 土地面積公簿 842.35㎡ 私道負担面積なし 土地権利所有権 |
間取4LDK 建物面積壁芯 165.14㎡ 構造木造 | 物件種目戸建住宅 築年月1977年12月(築48年0ヶ月) |
所在地津山市下横野 | |
交通
| |
おすすめポイントお子様のいるご家庭にもお勧め!伸び伸びと生活できる165㎡の2階建て中古戸建て物件です。広々としたお風呂やお庭があり、車もインナーガレージ付なので雨の日も安心。一部リフォーム済なのでそのままお使いいただけます。
680万円 | 土地面積公簿 842.35㎡ 私道負担面積なし 土地権利所有権 |
間取4LDK 建物面積壁芯 165.14㎡ 構造木造 | 物件種目戸建住宅 築年月1977年12月(築48年0ヶ月) |
所在地津山市下横野 | |
交通
| |
JR姫新線(佐用~新見) 美作千代駅 徒歩72分
※地図上に表示される家マークのアイコンは付近住所に所在することを表すものであり、実際の物件所在地とは異なる場合がございます。必ず不動産会社におたずねください。

取引態様:一般媒介
岡山県知事免許(9) 第0003250号
所属協会:(公社)全日本不動産協会
公正取引協議会:不動産公正取引協議会
宅地~事業用物件、賃貸物件のことまでお気軽にご相談下さい。
スマートフォンで
この不動産会社の情報を
ご覧になれます
※携帯電話ではご覧いただけません。
おすすめポイントお子様のいるご家庭にもお勧め!伸び伸びと生活できる165㎡の2階建て中古戸建て物件です。広々としたお風呂やお庭があり、車もインナーガレージ付なので雨の日も安心。一部リフォーム済なのでそのままお使いいただけます。
JR姫新線(佐用~新見) 美作千代駅 徒歩72分
(0868-25-0001)