岐阜市加納三笠町印刷する
おすすめポイント岐阜駅南口へ徒歩17分
980万円 | 土地面積公簿 81.97㎡ 私道負担面積 土地権利所有権 |
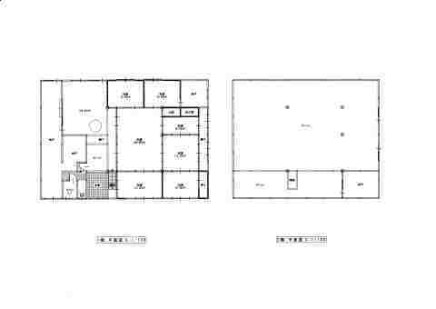
間取8DK 建物面積壁芯 131.84㎡ 構造軽量鉄骨 | 物件種目戸建住宅 築年月1969年5月24日(築56年7ヶ月) |
所在地岐阜市加納三笠町1丁目 | |
交通
| |
おすすめポイント岐阜駅南口へ徒歩17分
980万円 | 土地面積公簿 81.97㎡ 私道負担面積 土地権利所有権 |
間取8DK 建物面積壁芯 131.84㎡ 構造軽量鉄骨 | 物件種目戸建住宅 築年月1969年5月24日(築56年7ヶ月) |
所在地岐阜市加納三笠町1丁目 | |
交通
| |
JR東海道本線(浜松~岐阜) 岐阜駅 徒歩34分
※地図上に表示される家マークのアイコンは付近住所に所在することを表すものであり、実際の物件所在地とは異なる場合がございます。必ず不動産会社におたずねください。

取引態様:一般媒介
岐阜県知事免許(8) 第0003544号
所属協会:(公社)全日本不動産協会
公正取引協議会:不動産公正取引協議会
移住・田舎暮らしの達人
スマートフォンで
この不動産会社の情報を
ご覧になれます
※携帯電話ではご覧いただけません。
おすすめポイント岐阜駅南口へ徒歩17分
JR東海道本線(浜松~岐阜) 岐阜駅 徒歩34分
(0577-36-2555)