鹿児島県枕崎市豊留町印刷する
おすすめポイント
200万円 | 土地面積公簿 256.43㎡ 私道負担面積 土地権利所有権 |
|
間取8K 建物面積壁芯 216.76㎡ 構造鉄筋コンクリート・木造陸屋根・瓦葺2階建 | 物件種目戸建住宅 築年月1977年8月30日(築48年7ヶ月) |
|
所在地枕崎市豊留町 |
|
| 交通 |
|
最新の空室状況や詳しい情報はこちらから!
お問合せ(無料)【お問合せ先】 (有)幸産業
スマートフォンでこの物件の情報をご覧になれます
※携帯電話ではご覧いただけません。
- 交通
JR指宿枕崎線 薩摩板敷駅 徒歩13分
- 所在地
- 枕崎市豊留町
- 物件種目
- 戸建住宅
- 価格
- 200万円
- 敷金 / 保証金
- なし /
- 借地期間
- 地代(月額)
- 権利金
- その他一時金
- 維持費等
- 間取り(内訳)
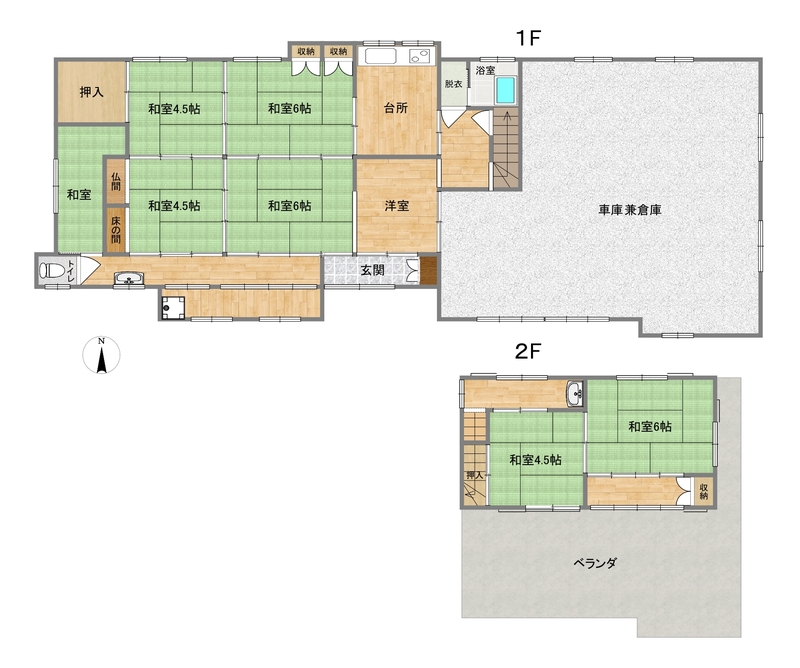
- 和室 1階 6帖 2室 和室 1階 4.5帖 2室 和室 1階 3帖 和室 2階 6帖 和室 2階 4.5帖 K 1階 3帖 洋室 2階 3帖
- 建物面積
- 壁芯 216.76㎡
- 土地面積
- 公簿 256.43㎡
- 私道負担面積
- 築年月
- 1977年8月30日(築48年7ヶ月)
- 階建
- 2階建
- 建物構造
- 鉄筋コンクリート・木造陸屋根・瓦葺2階建
- 駐車場
- 空きあり
- 接道状況
- 小学校
- 別府小学校(距離:1700m)
- 中学校
- 別府中学校(距離:2300m)
- 都市計画
- 非線引
- 用途地域
- 無指定
- 建ぺい率
- 70%
- 容積率
- 400%
- 地勢
- 地目
- セットバック
- 土地権利
- 所有権
- 国土法届出
- 建築確認
- 設備
- プロパンガス 浄化槽 専用バス 専用トイレ 洗面台 洗濯機置場 エアコン
- 建物状況調査
(インスペクション)
- 備考
- ・土地:約77.57坪/建物1階約55.02坪、2階約10.55坪
・鉄筋コンクリート部分の1階が車庫兼倉庫
- 現況
- 空き
- 引渡可能時期
- 相談
- 物件番号
- 64802674
- 情報公開日
- 2024/12/17
- 次回更新予定日
- 2026/04/18
枕崎市豊留町周辺の地図
地図を見る※地図上に表示される家マークのアイコンは付近住所に所在することを表すものであり、実際の物件所在地とは異なる場合がございます。必ず不動産会社におたずねください。
情報提供会社

- 交通JR指宿枕崎線 / 枕崎
- 住所〒898-0016 鹿児島県枕崎市高見町250
- TEL0993-72-6113
- FAX0993-78-3586
取引態様:一般媒介
鹿児島県知事免許(9) 第0003516号
所属協会:(公社)全日本不動産協会
公正取引協議会:不動産公正取引協議会
「買いたい、売りたい」不動産のことならお任せ下さい。
スマートフォンで
この不動産会社の情報を
ご覧になれます
※携帯電話ではご覧いただけません。
賃貸住宅を借りるなら、物件検索サイト「ラビーネット不動産」で。賃貸マンション・賃貸アパート・賃貸一戸建ての物件情報を住みたいエリア/沿線・駅から検索し、賃料/間取り/駅からの徒歩といった希望条件で絞り込むことができます。このほか、物件の探し方から契約、引越、入居時の手続まで、お部屋探しに役立つ情報が満載。このサイトは全国組織の業界団体である公益社団法人全日本不動産協会が運営する不動産情報サイトのため、安心して物件をお探しいただけます。住まい探しのことならラビーネット不動産にお任せください!