永田の家印刷する
おすすめポイント屋久島・永田―― 霊峰 永田岳 と、紺碧の 東シナ海、そして水平線に浮かぶ 口永良部島 を一望する、特別な場所に佇む古民家物件です。 本物件は、現在賃貸中のオーナーチェンジ物件(2年定期借家契約)で、表面利回り年8.7%を確保した、購入後すぐに安定した賃料収入が得られる魅力的な投資機会です。 屋久島の中でも特に人気の高い永田エリアにおいて、この利回りとロケーションを兼ね備えた物件は極めて希少です。 晴れた日には永田岳の雄姿を望み、夕暮れには海の彼方へ沈む壮麗な夕陽を日常として享受できる贅沢な立地。 古民家ならではの趣ある佇まいは、将来的にご自身の住まいとしてはもちろん、カフェ、宿泊施設、リトリート拠点など、多様な活用の可能性を秘めています。 「資産として保有しながら、将来は自分の拠点として使う」――そんな理想を現実にできる一棟です。 屋久島の自然価値は年々高まり、特に永田地区の優良物件は市場に出ること自体が稀です。 安定した収益と、唯一無二のロケーションという“二つの価値”を同時に手に入れる絶好の機会。 この景色と収益性を兼ね備えた物件は、まさに「今」だからこそ手に入ります。 ぜひ、この特別な不動産を次のオーナーとしてお迎えください。
550万円 | 土地面積公簿 181.26㎡ 私道負担面積なし 土地権利所有権 |
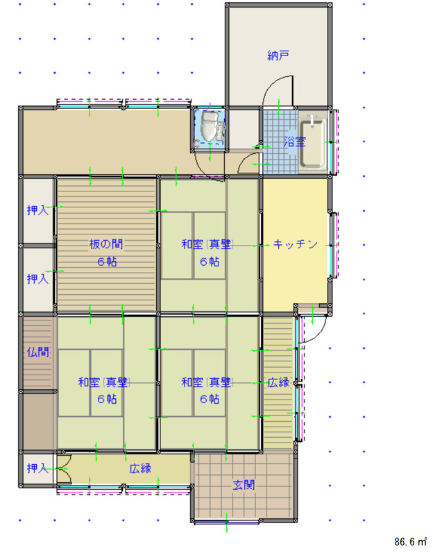
間取4K 建物面積壁芯 86㎡ 構造木造 | 物件種目戸建住宅 築年月1965年1月上旬(築61年2ヶ月) |
所在地熊毛郡屋久島町永田 | |
| 交通 | |


