おすすめポイント
1,800万円 | 土地面積公簿 590.65㎡ 私道負担面積 土地権利所有権 |
|
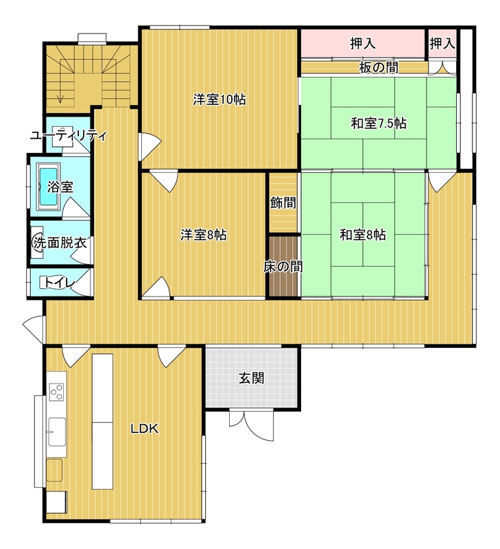
間取6LDK 建物面積壁芯 221.52㎡ 構造鉄筋コンクリート | 物件種目戸建住宅 築年月1981年12月(築44年3ヶ月) |
|
所在地熊野市久生屋町 |
|
| 交通 |
|
最新の空室状況や詳しい情報はこちらから!
お問合せ(無料)【お問合せ先】 藪本不動産
スマートフォンでこの物件の情報をご覧になれます
※携帯電話ではご覧いただけません。
- 交通
JR紀勢本線 有井駅 徒歩35分
- 所在地
- 熊野市久生屋町
- 物件種目
- 戸建住宅
- 価格
- 1,800万円
- 敷金 / 保証金
- なし /
- 借地期間
- 地代(月額)
- 権利金
- その他一時金
- 維持費等
- 間取り(内訳)
- 建物面積
- 壁芯 221.52㎡
- 土地面積
- 公簿 590.65㎡
- 私道負担面積
- 築年月
- 1981年12月(築44年3ヶ月)
- 階建
- 2階建
- 建物構造
- 鉄筋コンクリート
- 駐車場
- なし
- 接道状況
- 小学校
- 中学校
- 都市計画
- 非線引
- 用途地域
- 無指定
- 建ぺい率
- 70%
- 容積率
- 200%
- 地勢
- 平坦
- 地目
- 宅地
- セットバック
- 土地権利
- 所有権
- 国土法届出
- 建築確認
- 設備
- プロパンガス 浄化槽 閑静な住宅街 日当り良好
- 建物状況調査
(インスペクション)
- 備考
- バルコニー: あり 24.99㎡
主要採光面: 南向き
- 現況
- 居住中
- 引渡可能時期
- 相談
- 物件番号
- 56508749
- 情報公開日
- 2023/11/30
- 次回更新予定日
- 2026/03/21
熊野市久生屋町周辺の地図
地図を見る※地図上に表示される家マークのアイコンは付近住所に所在することを表すものであり、実際の物件所在地とは異なる場合がございます。必ず不動産会社におたずねください。
情報提供会社

- 交通紀勢本線 / 鵜殿 徒歩 7分
- 住所〒519-5701 三重県南牟婁郡紀宝町鵜殿1316番地24
- TEL0735-32-0639
- FAX0735-32-0639
取引態様:一般媒介
三重県知事免許(5) 第0002801号
所属協会:(公社)全日本不動産協会
公正取引協議会:不動産公正取引協議会
熊野市、南牟婁郡中心に営業しています。お気軽にどうぞ。
スマートフォンで
この不動産会社の情報を
ご覧になれます
※携帯電話ではご覧いただけません。
賃貸住宅を借りるなら、物件検索サイト「ラビーネット不動産」で。賃貸マンション・賃貸アパート・賃貸一戸建ての物件情報を住みたいエリア/沿線・駅から検索し、賃料/間取り/駅からの徒歩といった希望条件で絞り込むことができます。このほか、物件の探し方から契約、引越、入居時の手続まで、お部屋探しに役立つ情報が満載。このサイトは全国組織の業界団体である公益社団法人全日本不動産協会が運営する不動産情報サイトのため、安心して物件をお探しいただけます。住まい探しのことならラビーネット不動産にお任せください!