宮城県仙台市太白区茂庭字新組B棟

茂庭字新組B棟外観写真

4LDK小屋裏収納付き

スマートキー 玄関ドア

食品庫 キッチン背面のアクセントクロス

玄関ホールの収納

2階中部屋の洋室5.3帖 クローゼットと収納

階段部分は窓があり明るい

LDK18帖アクセントクロスがお洒落

人気の対面キッチン 食洗機付き

リビング隣の和室 引込戸で開放的に使用可

換気乾燥機能付きユニットバス

シャンプドレッサー洗面台

固定式階段の小屋裏収納4.4帖 便利

2階洋室11.3帖ウォークインクローゼット付き

急な雨でも安心のインナーバルコニー

1階2階ウォシュレットトイレ

分譲地全体写真

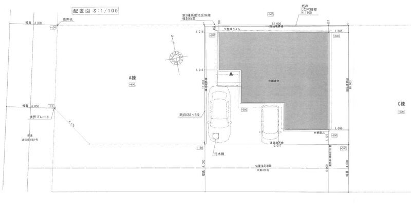
配置図面

案内図

駐車場全体

茂庭字新組B棟外観写真

4LDK小屋裏収納付き
- 価格
- 2,390万円
- 間取り
- 4SLDK
- 建物面積
- 内芯 109.3㎡
- 土地面積
- 公簿 120.13㎡
- 私道負担面積
- 103㎡ 共有持分 1/3
- 物件種目
- 戸建住宅
- 築年月
- 2023年5月(築2年11ヶ月)
- 建物構造
- 木造
- 土地権利
- 所有権
- 交通
仙台市営地下鉄南北線 長町南駅 茂庭 バス23分 徒歩3分
- 所在地
- 敷金/保証金
- なし /
- 借地期間
- 地代(月額)
- 権利金
- その他一時金
- 維持費等
- 間取り(内訳)
- 和室 4.5帖 洋室 11.3帖 洋室 5.3帖 2室 LDK 18帖 S 4.4帖
- 階建/階
- 2階建/
- 駐車場
- 空きあり 無料/月
- 接道状況
- 南向き4m 私道 接面12m 位置指定あり
- 小学校
- 生出小学校(距離:600m)
- 中学校
- 生出中学校(距離:600m)
- 都市計画
- 市街化
- 用途地域
- 1種住居
- 建ぺい率
- 60%
- 容積率
- 160%
- 地勢
- 平坦
- 地目
- 宅地
- セットバック
- 国土法届出
- 建築確認
- 7240
- 設備
- 排水下水 駐車場2台分 閑静な住宅街 水道公営 バス・トイレ別 トイレ2ヶ所 温水洗浄便座 シャワー 追焚機能 オートバス 浴室乾燥機 浴室1坪以上 洗髪洗面化粧台 室内洗濯機置場 システムキッチン IHクッキングヒーター オール電化 浄水器 食器洗浄乾燥機 エコキュート 24時間換気システム 複層ガラス 収納スペース ウォークインクローゼット シューズボックス 床下収納 屋根裏収納 モニタ付インターホン ディンプルキー カードキー 火災警報器 照明器具 フローリング バルコニー 庭 日当り良好
- 建物状況調査
(インスペクション)
- 備考
- 他所在地: 茂庭字新組B棟
バルコニー: あり
主要採光面: 南向き
■ウォークインクローゼット、固定式階段の小屋裏収納付き4LDK。
■食品庫や玄関脇
■オール電化住宅。
■南向き
■全3棟分譲 残り2棟
- 引渡可能時期
- 即時
- 現況
- 完成済
- 条件等
- 物件番号
- 48282513
- 情報公開日
- 2023/03/18
- 次回更新予定日
- 2026/04/17
情報提供会社
- 交通
- 仙台市営地下鉄南北線 / 富沢 徒歩 12分
- 住所
- 〒982-0014 宮城県仙台市太白区大野田3丁目1-40
- TEL
- 022-248-2103
- FAX
- 022-304-5677
- 取引態様
- 売主
- 免許番号
- 宮城県知事免許(6) 第0004854号
- 所属協会
- (公社)全日本不動産協会
- 公正取引協議会
- 不動産公正取引協議会
賃貸住宅を借りるなら、物件検索サイト「ラビーネット不動産」で。賃貸マンション・賃貸アパート・賃貸一戸建ての物件情報を住みたいエリア/沿線・駅から検索し、賃料/間取り/駅からの徒歩といった希望条件で絞り込むことができます。このほか、物件の探し方から契約、引越、入居時の手続まで、お部屋探しに役立つ情報が満載。このサイトは全国組織の業界団体である公益社団法人全日本不動産協会が運営する不動産情報サイトのため、安心して物件をお探しいただけます。住まい探しのことならラビーネット不動産にお任せください!