岐阜県下呂市御厩野
おすすめポイントまだ道が馬車道しかない時代からの住宅群。当該家屋は中でも幸運に恵まれた栄えた農家住宅。
長野県と岐阜県との境に車で1時間の近い地域、部屋は大きく続き間の和室、2度にわたりリノベーション。設備を近代化し、修繕個所はない、そのまま住める。井戸もあり池もある。農地もあり自給自作体制もとれる。国道の向こうはJAの農産物直売所で出荷も可能。本格的な就農でも近くにJA集荷場がある。トマト、ホウレン草は岐阜県指定作物で就農支援制度もある。就農者生活資金支援制度もあり未経験者歓迎だ。

外観

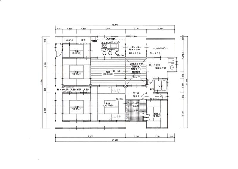
1階間取り図面

囲炉裏端

建物全景

玄関

庭

玄関内部

洋室

仏間

内便所

風呂

洗面所

台所・食堂

洗面脱衣室

外便所

外便所

和室

外観

1階間取り図面
- 価格
- 888万円
- 間取り
- 9DK
- 建物面積
- 内芯 274.53㎡
- 土地面積
- 公簿 762.32㎡
- 私道負担面積
- 物件種目
- 戸建住宅
- 築年月
- 1947年8月(築78年4ヶ月)
- 建物構造
- 木造
- 土地権利
- 所有権
- 敷金/保証金
- なし /
- 借地期間
- 地代(月額)
- 権利金
- その他一時金
- 維持費等
- 間取り(内訳)
- 和室 4帖 和室 8帖 2室 和室 10帖 和室 12.5帖 和室 6帖 2室 洋室 7.5帖 洋室 4.5帖
- 階建/階
- 1階建/
- 駐車場
- なし
- 接道状況
- その他 北向き4m 私道 接面4m
- 小学校
- 竹原小学校(距離:3750m)
- 中学校
- 下呂中学校(距離:9860m)
- 都市計画
- 区域外
- 用途地域
- 無指定
- 建ぺい率
- 容積率
- 地勢
- 平坦
- 地目
- 宅地
- セットバック
- 国土法届出
- 建築確認
- 設備
- 井戸 プロパンガス 排水下水 閑静な住宅街 トイレ2ヶ所 温水洗浄便座 洗髪洗面化粧台 システムキッチン CATV 照明器具 出窓 庭 シャッター 農地付 日当り良好 二世帯向き
- 建物状況調査
(インスペクション)
- 備考
- バルコニー: あり
主要採光面: 南向き
中津川市と下呂市との境、舞台峠の上り口、もともとの家は全面リフォームされていて現代風設備。倉庫と外便所で3建物。陽当りは良好、駐車場が5台は停められる。台所の外には池がある。駐車場のさらに南は農地がで家庭菜園が楽しめる。バス停が歩いて3分の国道沿いの位置にある。お隣はお医者さん。色々と安心できる。
囲炉裏端は地元産檜30mm厚の幅広ので床板を貼っている。冬でも冷たい感がない。玄関土間から幅1200mmの無垢板戸で1段高い畳間の続き間へ、廊下縁側は作業の合間のお茶タイムの休憩の場、井戸があり、災害時の飲水の備えがある。勿論災害などは今のところない。地元民はこの地区では一番の環境といわれる。見なきゃ解らないので是非感じに来てください。
- 引渡可能時期
- 即時
- 現況
- 空き
- 条件等
- 物件番号
- 48273291
- 情報公開日
- 2023/02/18
- 次回更新予定日
- 2025/08/21
情報提供会社
- 交通
- 高山本線 / 高山 徒歩 14分
- 住所
- 〒506-0009 岐阜県高山市花岡町3丁目95-10
- TEL
- 0577-36-2555
- FAX
- 0577-36-2666
- 取引態様
- 一般媒介
- 免許番号
- 岐阜県知事免許(8) 第0003544号
- 所属協会
- (公社)全日本不動産協会
- 公正取引協議会
- 不動産公正取引協議会
賃貸住宅を借りるなら、物件検索サイト「ラビーネット不動産」で。賃貸マンション・賃貸アパート・賃貸一戸建ての物件情報を住みたいエリア/沿線・駅から検索し、賃料/間取り/駅からの徒歩といった希望条件で絞り込むことができます。このほか、物件の探し方から契約、引越、入居時の手続まで、お部屋探しに役立つ情報が満載。このサイトは全国組織の業界団体である公益社団法人全日本不動産協会が運営する不動産情報サイトのため、安心して物件をお探しいただけます。住まい探しのことならラビーネット不動産にお任せください!