スウェーデンハウス 東京都町田市能ヶ谷7丁目印刷する
おすすめポイント
7,200万円 | 土地面積公簿 231.44㎡ 私道負担面積 土地権利所有権 |
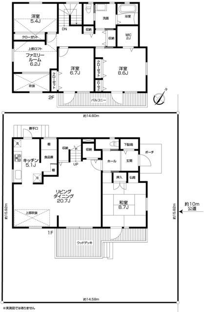
間取4SLDK 建物面積壁芯 150.77㎡ 構造木造 | 物件種目戸建住宅 築年月2008年12月(築17年2ヶ月) |
所在地町田市能ヶ谷7丁目 | |
交通
| |
おすすめポイント
7,200万円 | 土地面積公簿 231.44㎡ 私道負担面積 土地権利所有権 |
間取4SLDK 建物面積壁芯 150.77㎡ 構造木造 | 物件種目戸建住宅 築年月2008年12月(築17年2ヶ月) |
所在地町田市能ヶ谷7丁目 | |
交通
| |
小田急線 鶴川駅 徒歩22分
※地図上に表示される家マークのアイコンは付近住所に所在することを表すものであり、実際の物件所在地とは異なる場合がございます。必ず不動産会社におたずねください。
取引態様:専任媒介
東京都知事免許(6) 第0074303号
所属協会:(公社)全日本不動産協会
公正取引協議会:不動産公正取引協議会
スマートフォンで
この不動産会社の情報を
ご覧になれます
※携帯電話ではご覧いただけません。
小田急線 鶴川駅 徒歩22分
(0120-899-123)