NEW
ワタナベファーストビル 2F印刷するおすすめポイント
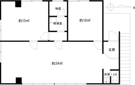
19.25万円 管理費等:5,500円 | 敷金なし 礼金19.25万円 保証金3ヶ月 |
使用部分面積71.1㎡ 坪数21.5坪 坪単価0.82万円/坪/坪 | 物件種目店舗・事務所(一部) 駐車場なし |
所在地大田区西糀谷3丁目 | |
交通
| |
NEW
ワタナベファーストビル 2F印刷するおすすめポイント
19.25万円 管理費等:5,500円 | 敷金なし 礼金19.25万円 保証金3ヶ月 |
使用部分面積71.1㎡ 坪数21.5坪 坪単価0.82万円/坪/坪 | 物件種目店舗・事務所(一部) 駐車場なし |
所在地大田区西糀谷3丁目 | |
交通
| |
京急空港線 糀谷駅 徒歩10分
※地図上に表示される家マークのアイコンは付近住所に所在することを表すものであり、実際の物件所在地とは異なる場合がございます。必ず不動産会社におたずねください。

取引態様:専任媒介
東京都知事免許(5) 第0083469号
所属協会:(公社)全日本不動産協会
公正取引協議会:不動産公正取引協議会
スマートフォンで
この不動産会社の情報を
ご覧になれます
※携帯電話ではご覧いただけません。
1 / 9
京急空港線 糀谷駅 徒歩10分
(042-490-5090)