NEW
田園調布二丁目貸家印刷するおすすめポイント
39.6万円 管理費等:なし | 敷金なし 礼金1.1ヶ月 保証金3ヶ月 |
|
使用部分面積105.46㎡ 坪数31.9坪 坪単価1.13万円/坪/坪 | 物件種目店舗(全部) 駐車場なし |
|
所在地大田区田園調布2丁目 |
|
交通- 東急東横線 田園調布駅 徒歩8分
- 東急目黒線 田園調布駅 徒歩8分
|
|
最新の空室状況や詳しい情報はこちらから!
お問合せ(無料)【お問合せ先】 (株)アスター
スマートフォンでこの物件の情報をご覧になれます
※携帯電話ではご覧いただけません。
- 交通
東急東横線 田園調布駅 徒歩8分
東急目黒線 田園調布駅 徒歩8分
- 所在地
- 大田区田園調布2丁目
- 物件種目
- 店舗(全部)
- 賃料
- 39.6万円
- 管理費等
- なし
- 敷金 / 保証金
- なし / 3ヶ月
- 礼金
- 1.1ヶ月
- 敷引
- 坪単価
- 1.13万円/坪
- 保証金償却
- 権利金
- 造作譲渡
- その他一時金
-
- 維持費等
- 保険等
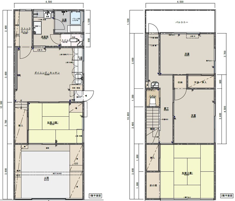
- 使用部分面積
- 105.46㎡
- 土地面積
- 坪数
- 31.9坪
- 築年月
- 1973年7月30日(築52年7ヶ月)
- 階建/階
- 2階建/
- 駐車場
- なし
- 建物構造
- 木造
- 建物名・部屋番号
- 田園調布二丁目貸家
- 接道状況
- 小学校
- 中学校
- 用途地域
- 設備
- 都市ガス
- 備考
賃貸保証等: 要保証会社加入 日本セーフティー株式会社 初回保証料(総賃料100%)、月額保証料(0.8%/月)、口座振替手数料(400円+税/月)
- 契約期間
- 3年間
- 引渡可能時期
- 相談
- 現況
- 空き
- 条件等
- 更新料
- 新賃料 1.1ヶ月
- 物件番号
- 72690655
- 情報公開日
- 2026/03/02NEW
- 次回更新予定日
- 2026/04/01
大田区田園調布2丁目周辺の地図
地図を見る※地図上に表示される家マークのアイコンは付近住所に所在することを表すものであり、実際の物件所在地とは異なる場合がございます。必ず不動産会社におたずねください。
情報提供会社

- 交通東京メトロ銀座線 / 外苑前 徒歩 2分
- 住所〒107-0062 東京都港区南青山2丁目26-37VORT外苑前Ⅰ 5階
- TEL03-5775-2121
- FAX03-3478-8921
取引態様:一般媒介
東京都知事免許(6) 第0077630号
所属協会:(公社)全日本不動産協会
公正取引協議会:不動産公正取引協議会
スマートフォンで
この不動産会社の情報を
ご覧になれます
※携帯電話ではご覧いただけません。
賃貸住宅を借りるなら、物件検索サイト「ラビーネット不動産」で。賃貸マンション・賃貸アパート・賃貸一戸建ての物件情報を住みたいエリア/沿線・駅から検索し、賃料/間取り/駅からの徒歩といった希望条件で絞り込むことができます。このほか、物件の探し方から契約、引越、入居時の手続まで、お部屋探しに役立つ情報が満載。このサイトは全国組織の業界団体である公益社団法人全日本不動産協会が運営する不動産情報サイトのため、安心して物件をお探しいただけます。住まい探しのことならラビーネット不動産にお任せください!