ERIshukugawa 3階印刷する
おすすめポイント
15.4万円 管理費等:なし | 敷金なし 礼金2ヶ月 保証金なし |
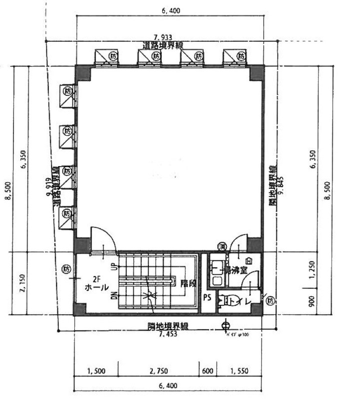
使用部分面積45㎡ 坪数13.61坪 坪単価1.03万円/坪/坪 | 物件種目店舗(一部) 駐車場なし |
所在地西宮市弓場町 | |
交通
| |
おすすめポイント
15.4万円 管理費等:なし | 敷金なし 礼金2ヶ月 保証金なし |
使用部分面積45㎡ 坪数13.61坪 坪単価1.03万円/坪/坪 | 物件種目店舗(一部) 駐車場なし |
所在地西宮市弓場町 | |
交通
| |
阪神本線 香櫨園駅 徒歩10分
JR神戸線(大阪~神戸) さくら夙川駅 徒歩15分
阪急神戸本線 夙川駅 徒歩18分
※地図上に表示される家マークのアイコンは付近住所に所在することを表すものであり、実際の物件所在地とは異なる場合がございます。必ず不動産会社におたずねください。

取引態様:専任媒介
大阪府知事免許(2) 第0061228号
所属協会:(公社)全日本不動産協会
公正取引協議会:不動産公正取引協議会
スマートフォンで
この不動産会社の情報を
ご覧になれます
※携帯電話ではご覧いただけません。
1 / 11
阪神本線 香櫨園駅 徒歩10分
JR神戸線(大阪~神戸) さくら夙川駅 徒歩15分
阪急神戸本線 夙川駅 徒歩18分
(06-6966-0363)