鎌倉市二階堂住宅付店ポ 1F店舗2F居
おすすめポイント鎌倉の名店「米倉」が新天地・茨城でオーベルジュを開業するため、長年愛された鎌倉の店舗を、このたび居住スペースと併せた戸建一棟で賃貸することに。 鎌倉の静寂と美意識をまとった特別な一軒です。 日本料理「米倉」の余韻をそのままに、洗練された上質空間を引き継げます。 成熟した客層にふさわしい、希少なロケーションです。鎌倉に暮らし、ゆっくりと店を育てていける環境をお探しの方に是非お使いいただきたい物件です。

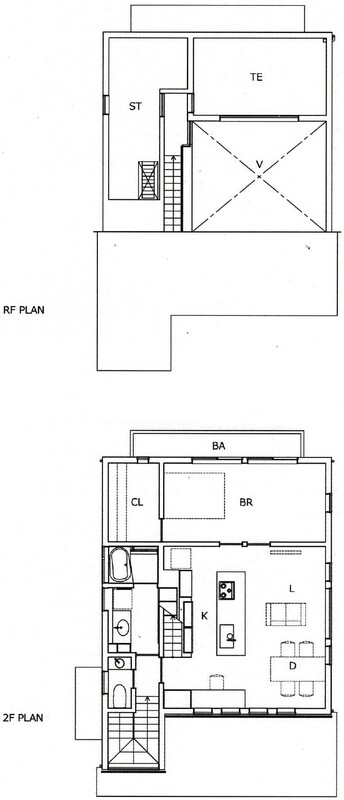
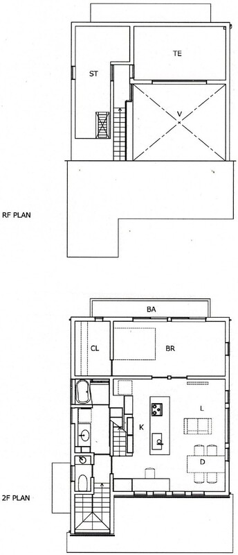
立面

1F

2F

立面

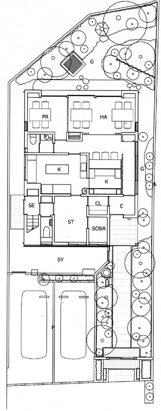
外観

カウンター席

テーブル席

個室

駐車スペース

居室

居室キッチン

外観

カウンター(店舗)

ホール(店舗)

個室(店舗)

駐車スペース

居室

アイランドキッチン (居室)

1F

2F

立面

1F
- 賃料
- 44万円
- 管理費等
- 敷金 / 保証金
- なし / 6ヶ月
- 礼金
- 1ヶ月
- 使用部分面積
- 内芯 130.85㎡
- 坪数
- 39.58坪
- 物件種目
- 住宅付店舗(一部)
- 築年月
- 2014年12月中旬(築11年0ヶ月)
- 坪単価
- 1.02万円/坪
- 駐車場
- 空きあり
- 交通
JR横須賀線 鎌倉駅 大塔宮 バス14分 徒歩5分
- 所在地
- 敷引
- 保証金償却
- 1ヶ月
- 権利金
- 造作譲渡
- その他一時金
- 維持費等
- 保険等
- 加入要 / アクア少額短期保険 2年間 80,000円
- 土地面積
- 階建/階
- 2階建/
- 建物構造
- 木造
- 建物名・部屋番号
- 鎌倉市二階堂住宅付店ポ 1F店舗2F居
- 小学校
- 中学校
- 接道状況
- 用途地域
- 1種低層
- 設備
- 井戸 都市ガス 排水下水 駐車場2台分 閑静な住宅街 共用部24時間利用可 新築時・増改築時の設計図書 水道公営 井戸 都市ガス 排水下水 専用バス 専用トイレ バス・トイレ別 トイレ2ヶ所 温水洗浄便座 暖房便座 シャワー 追焚機能 オートバス 独立洗面台 洗面台 洗面所 室内洗濯機置場 洗濯機置場 システムキッチン カウンターキッチン IHクッキングヒーター ガスコンロ可 2口コンロ コンロ3口以上 ガスコンロ 給湯 浄水器 エアコン 暖房 冷房 収納スペース ウォークインクローゼット シューズボックス 玄関収納 全室収納 家具付き 冷蔵庫 フローリング ロフト バルコニー ルーフバルコニー 庭 専用庭 駐車場2台分 閑静な住宅街 居抜き 飲食店可 新築時・増改築時の設計図書 ペット相談 二人入居可
- 備考
- 賃貸保証等: 利用必須 アークシステムテクノロジーズ
バルコニー: あり
- 契約期間
- 3年間
- 引渡可能時期
- 予定 2026年6月1日
- 現況
- 居住中
- 条件等
- 更新料
- 新賃料 1ヶ月
- 物件番号
- 69721506
- 情報公開日
- 2025/11/25
- 次回更新予定日
- 2025/12/26
情報提供会社
- 交通
- 湘南モノレール / 湘南深沢 徒歩 15分
- 住所
- 〒248-0027 神奈川県鎌倉市笛田2丁目36-14
- TEL
- 0467-40-3405
- FAX
- 000-0000-0000
- 取引態様
- 専任媒介
- 免許番号
- 神奈川県知事免許(1) 第0031475号
- 所属協会
- (公社)全日本不動産協会
- 公正取引協議会
- 不動産公正取引協議会
賃貸住宅を借りるなら、物件検索サイト「ラビーネット不動産」で。賃貸マンション・賃貸アパート・賃貸一戸建ての物件情報を住みたいエリア/沿線・駅から検索し、賃料/間取り/駅からの徒歩といった希望条件で絞り込むことができます。このほか、物件の探し方から契約、引越、入居時の手続まで、お部屋探しに役立つ情報が満載。このサイトは全国組織の業界団体である公益社団法人全日本不動産協会が運営する不動産情報サイトのため、安心して物件をお探しいただけます。住まい探しのことならラビーネット不動産にお任せください!