旧ドミノピザ米子店店舗(5丁目11番26号)印刷する
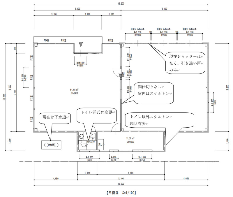
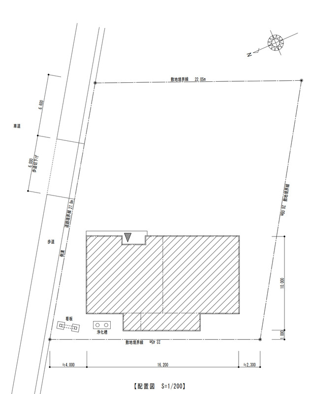
おすすめポイント敷地(約190坪)前テナントが令和3年11月にタイヤショップからピザ店へ屋内全面改装。令和7年5月半ばまでであれば、撤去予定である厨房機器等を残置することも可能。
33万円 管理費等:なし | 敷金3ヶ月 礼金1ヶ月 保証金なし |
使用部分面積壁芯 145.08㎡ 坪数43.88坪 坪単価0.69万円/坪/坪 | 物件種目店舗(全部) 駐車場空きあり 無料/月 |
所在地米子市米原5丁目 | |
交通
| |
おすすめポイント敷地(約190坪)前テナントが令和3年11月にタイヤショップからピザ店へ屋内全面改装。令和7年5月半ばまでであれば、撤去予定である厨房機器等を残置することも可能。
33万円 管理費等:なし | 敷金3ヶ月 礼金1ヶ月 保証金なし |
使用部分面積壁芯 145.08㎡ 坪数43.88坪 坪単価0.69万円/坪/坪 | 物件種目店舗(全部) 駐車場空きあり 無料/月 |
所在地米子市米原5丁目 | |
交通
| |
JR境線 三本松口駅 徒歩6分
※地図上に表示される家マークのアイコンは付近住所に所在することを表すものであり、実際の物件所在地とは異なる場合がございます。必ず不動産会社におたずねください。
取引態様:専任媒介
鳥取県知事免許(2) 第0001365号
所属協会:(公社)全日本不動産協会
公正取引協議会:不動産公正取引協議会
事業用不動産に注力しております。居住用は収益不動産が中心です
スマートフォンで
この不動産会社の情報を
ご覧になれます
※携帯電話ではご覧いただけません。
おすすめポイント敷地(約190坪)前テナントが令和3年11月にタイヤショップからピザ店へ屋内全面改装。令和7年5月半ばまでであれば、撤去予定である厨房機器等を残置することも可能。
JR境線 三本松口駅 徒歩6分
(0859-57-6224)