NEW
内山ビル 2F印刷するおすすめポイント
27.6496万円 管理費等:51,843円 | 敷金なし 礼金なし 保証金5ヶ月 |
|
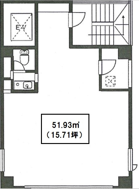
使用部分面積51.93㎡ 坪数15.7坪 坪単価1.61万円/坪/坪 | 駐車場なし 物件種目事務所(一部) 築年月1984年2月1日(築42年1ヶ月) |
|
所在地港区西新橋3丁目 |
|
交通- JR山手線 新橋駅 徒歩9分
- 都営三田線 御成門駅 徒歩5分
|
|
最新の空室状況や詳しい情報はこちらから!
お問合せ(無料)【お問合せ先】 CG(株)
スマートフォンでこの物件の情報をご覧になれます
※携帯電話ではご覧いただけません。
- 交通
JR山手線 新橋駅 徒歩9分
都営三田線 御成門駅 徒歩5分
- 所在地
- 港区西新橋3丁目
- 物件種目
- 事務所(一部)
- 賃料
- 27.6496万円
- 管理費等
- 51,843円
- 敷金 / 保証金
- なし / 5ヶ月
- 礼金
- なし
- 敷引
- 坪単価
- 1.61万円/坪
- 保証金償却
- 2ヶ月
- 権利金
- 造作譲渡
- その他一時金
- 鍵交換費用:57,893円(契約時)、案内板作成費用:11,000円(契約時)
- 維持費等
- セキュリティ料:6,600円(毎月)
- 保険等
- 加入要 /
- 使用部分面積
- 51.93㎡
- 土地面積
- 坪数
- 15.7坪
- 築年月
- 1984年2月1日(築42年1ヶ月)
- 階建/階
- 10階建/2階
- 駐車場
- なし
- 建物構造
- 鉄骨鉄筋コンクリート
- 建物名・部屋番号
- 内山ビル 2F
- 接道状況
- 小学校
- 中学校
- 用途地域
- 設備
- 都市ガス 排水下水 エレベーター 水道公営 都市ガス 排水下水
- 備考
- 賃貸保証等: 利用必須 初回保証料:月額固定費の100%
上場企業、大手法人等は要相談
■設備・条件欄
EV、専有部トイレ、給湯、個別空調、1フロア1テナント、24時間使用可
- 契約期間
- 2年間
- 引渡可能時期
- 即時
- 現況
- 空き
- 条件等
- 更新料
- 新賃料 1ヶ月
- 物件番号
- 73238875
- 情報公開日
- 2026/03/21NEW
- 次回更新予定日
- 2026/04/20
港区西新橋3丁目周辺の地図
地図を見る※地図上に表示される家マークのアイコンは付近住所に所在することを表すものであり、実際の物件所在地とは異なる場合がございます。必ず不動産会社におたずねください。
情報提供会社

- 交通
- 住所〒112-0013 東京都文京区音羽1丁目6-8
- TEL03-5810-2871
- FAX03-5810-2872
取引態様:一般媒介
東京都知事免許(1) 第0113193号
所属協会:(公社)全日本不動産協会
公正取引協議会:不動産公正取引協議会
スマートフォンで
この不動産会社の情報を
ご覧になれます
※携帯電話ではご覧いただけません。
賃貸住宅を借りるなら、物件検索サイト「ラビーネット不動産」で。賃貸マンション・賃貸アパート・賃貸一戸建ての物件情報を住みたいエリア/沿線・駅から検索し、賃料/間取り/駅からの徒歩といった希望条件で絞り込むことができます。このほか、物件の探し方から契約、引越、入居時の手続まで、お部屋探しに役立つ情報が満載。このサイトは全国組織の業界団体である公益社団法人全日本不動産協会が運営する不動産情報サイトのため、安心して物件をお探しいただけます。住まい探しのことならラビーネット不動産にお任せください!