NEW
ユニティービル 402印刷するおすすめポイント
7.7万円 管理費等:なし | 敷金なし 礼金1ヶ月 保証金3ヶ月 |
|
使用部分面積内芯 25.59㎡ 坪数7.74坪 坪単価0.91万円/坪/坪 | 駐車場なし 物件種目店舗・事務所(一部) 築年月1995年4月(築31年0ヶ月) |
|
所在地京都市右京区西院清水町 |
|
| 交通 |
|
最新の空室状況や詳しい情報はこちらから!
お問合せ(無料)【お問合せ先】 ぬりかべ不動産(株)
スマートフォンでこの物件の情報をご覧になれます
※携帯電話ではご覧いただけません。
- 交通
阪急京都本線 西院駅 徒歩14分
- 所在地
- 京都市右京区西院清水町
- 物件種目
- 店舗・事務所(一部)
- 賃料
- 7.7万円
- 管理費等
- なし
- 敷金 / 保証金
- なし / 3ヶ月
- 礼金
- 1ヶ月
- 敷引
- 坪単価
- 0.91万円/坪
- 保証金償却
- 50%
- 権利金
- 造作譲渡
- その他一時金
- 維持費等
- 保険等
- 加入要 /
- 使用部分面積
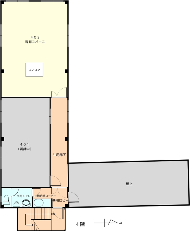
- 内芯 25.59㎡
- 土地面積
- 坪数
- 7.74坪
- 築年月
- 1995年4月(築31年0ヶ月)
- 階建/階
- 4階建/4階
- 駐車場
- なし
- 建物構造
- 鉄骨造
- 建物名・部屋番号
- ユニティービル 402
- 接道状況
- 小学校
- 中学校
- 用途地域
- 工業地域
- 設備
- 都市ガス 排水下水 防犯カメラ 駐輪場 バイク置き場 共用部24時間利用可 エアコン
- 備考
- 賃貸保証等: 利用必須 日本セーフティー
主要採光面: 西向き
- 契約期間
- 2年間
- 引渡可能時期
- 即時
- 現況
- 空き
- 条件等
- 更新料
- 新賃料 1ヶ月
- 物件番号
- 73192771
- 情報公開日
- 2026/03/19NEW
- 次回更新予定日
- 2026/04/18
京都市右京区西院清水町周辺の地図
地図を見る※地図上に表示される家マークのアイコンは付近住所に所在することを表すものであり、実際の物件所在地とは異なる場合がございます。必ず不動産会社におたずねください。
情報提供会社

- 交通
- 住所〒607-8341 京都府京都市山科区西野今屋敷町19番地2
- TEL050-1871-0822
- FAX050-1871-0823
取引態様:専任媒介
京都府知事免許(1) 第0014912号
所属協会:(公社)全日本不動産協会
公正取引協議会:不動産公正取引協議会
スマートフォンで
この不動産会社の情報を
ご覧になれます
※携帯電話ではご覧いただけません。
賃貸住宅を借りるなら、物件検索サイト「ラビーネット不動産」で。賃貸マンション・賃貸アパート・賃貸一戸建ての物件情報を住みたいエリア/沿線・駅から検索し、賃料/間取り/駅からの徒歩といった希望条件で絞り込むことができます。このほか、物件の探し方から契約、引越、入居時の手続まで、お部屋探しに役立つ情報が満載。このサイトは全国組織の業界団体である公益社団法人全日本不動産協会が運営する不動産情報サイトのため、安心して物件をお探しいただけます。住まい探しのことならラビーネット不動産にお任せください!