NEW
南青山第2シティビル 4F印刷するおすすめポイント
78.716万円 | 敷金なし 礼金なし 保証金10ヶ月 |
|
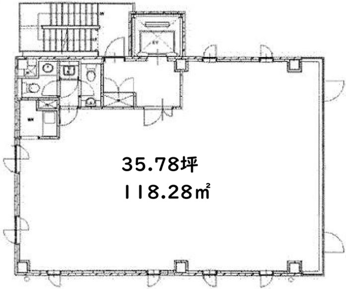
使用部分面積118.28㎡ 坪数35.77坪 坪単価2.01万円/坪/坪 | 駐車場なし 物件種目事務所(一部) 築年月2000年5月(築25年10ヶ月) |
|
所在地港区南青山2丁目 |
|
交通- 東京メトロ銀座線 外苑前駅 徒歩3分
- 東京メトロ半蔵門線 青山一丁目駅 徒歩11分
|
|
最新の空室状況や詳しい情報はこちらから!
お問合せ(無料)【お問合せ先】 CG(株)
スマートフォンでこの物件の情報をご覧になれます
※携帯電話ではご覧いただけません。
- 交通
東京メトロ銀座線 外苑前駅 徒歩3分
東京メトロ半蔵門線 青山一丁目駅 徒歩11分
- 所在地
- 港区南青山2丁目
- 物件種目
- 事務所(一部)
- 賃料
- 78.716万円
- 管理費等
- 敷金 / 保証金
- なし / 10ヶ月
- 礼金
- なし
- 敷引
- 坪単価
- 2.01万円/坪
- 保証金償却
- 権利金
- 造作譲渡
- その他一時金
- 維持費等
- 保険等
- 加入要 /
- 使用部分面積
- 118.28㎡
- 土地面積
- 坪数
- 35.77坪
- 築年月
- 2000年5月(築25年10ヶ月)
- 階建/階
- 4階建/4階
- 駐車場
- なし
- 建物構造
- 鉄骨造
- 建物名・部屋番号
- 南青山第2シティビル 4F
- 接道状況
- 小学校
- 中学校
- 用途地域
- 設備
- エレベーター 専用トイレ 男女別トイレ 給湯 個別空調 エレベーター OAフロア
- 備考
- 賃貸保証等: 利用必須 上場企業、大手法人等は要相談
1フロア1テナント、新耐震基準
天井高:約2,450mm
事務所使用のみ可
(レンタルスペース、貸会議室等不可)
- 契約期間
- 2年間
- 引渡可能時期
- 予定 2026年5月上旬
- 現況
- 条件等
- 更新料
- 物件番号
- 72994720
- 情報公開日
- 2026/03/12NEW
- 次回更新予定日
- 2026/04/11
港区南青山2丁目周辺の地図
地図を見る※地図上に表示される家マークのアイコンは付近住所に所在することを表すものであり、実際の物件所在地とは異なる場合がございます。必ず不動産会社におたずねください。
情報提供会社

- 交通
- 住所〒112-0013 東京都文京区音羽1丁目6-8
- TEL03-5810-2871
- FAX03-5810-2872
取引態様:一般媒介
東京都知事免許(1) 第0113193号
所属協会:(公社)全日本不動産協会
公正取引協議会:不動産公正取引協議会
スマートフォンで
この不動産会社の情報を
ご覧になれます
※携帯電話ではご覧いただけません。
賃貸住宅を借りるなら、物件検索サイト「ラビーネット不動産」で。賃貸マンション・賃貸アパート・賃貸一戸建ての物件情報を住みたいエリア/沿線・駅から検索し、賃料/間取り/駅からの徒歩といった希望条件で絞り込むことができます。このほか、物件の探し方から契約、引越、入居時の手続まで、お部屋探しに役立つ情報が満載。このサイトは全国組織の業界団体である公益社団法人全日本不動産協会が運営する不動産情報サイトのため、安心して物件をお探しいただけます。住まい探しのことならラビーネット不動産にお任せください!