キャッスル小豆沢 101印刷する
おすすめポイント
62.7万円 | 敷金なし 礼金1ヶ月 保証金3ヶ月 |
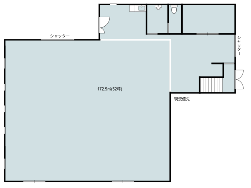
使用部分面積172.5㎡ 坪数52.18坪 坪単価1.1万円/坪/坪 | 駐車場空きあり 物件種目事務所(一部) 築年月2002年4月(築23年8ヶ月) |
所在地板橋区小豆沢1丁目 | |
交通
| |
おすすめポイント
62.7万円 | 敷金なし 礼金1ヶ月 保証金3ヶ月 |
使用部分面積172.5㎡ 坪数52.18坪 坪単価1.1万円/坪/坪 | 駐車場空きあり 物件種目事務所(一部) 築年月2002年4月(築23年8ヶ月) |
所在地板橋区小豆沢1丁目 | |
交通
| |
都営三田線 志村坂上駅 徒歩10分
都営三田線 本蓮沼駅 徒歩11分
JR埼京線 北赤羽駅 徒歩16分
※地図上に表示される家マークのアイコンは付近住所に所在することを表すものであり、実際の物件所在地とは異なる場合がございます。必ず不動産会社におたずねください。
取引態様:一般媒介
東京都知事免許(3) 第0096240号
所属協会:(公社)全日本不動産協会
公正取引協議会:不動産公正取引協議会
スマートフォンで
この不動産会社の情報を
ご覧になれます
※携帯電話ではご覧いただけません。
都営三田線 志村坂上駅 徒歩10分
都営三田線 本蓮沼駅 徒歩11分
JR埼京線 北赤羽駅 徒歩16分
(03-6454-9846)