ND house 108物件画像数20周辺画像数0動画数04.5万円管理費等:4,000円敷金なし礼金なし保証金なし間取1K専有面積20.28㎡構造木造物件種目アパート階建/階2階建/1階築年月2018年3月(築7年9ヶ月)所在地野田市上花輪交通東武野田線 野田市駅 徒歩8分東武野田線 愛宕駅 徒歩20分東武野田線 梅郷駅 徒歩37分不動産会社:(株)シエルトパートナー東京メトロ南北線 / 六本木一丁目 徒歩 1分定額管理1,000円になります!詳細を見るとりあえず保存お問合せ(無料)
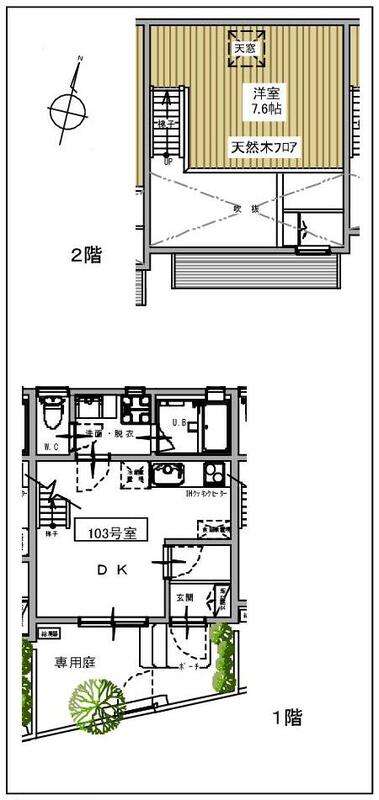
杜の家 103物件画像数6周辺画像数0動画数05.2万円管理費等:3,000円敷金2ヶ月礼金なし保証金なし間取1DK専有面積39.55㎡構造木造物件種目アパート階建/階2階建/1階築年月2010年1月(築15年11ヶ月)所在地野田市尾崎交通東武アーバンパークライン(東武野田線) 川間駅 徒歩3分不動産会社:(株)埼王住研JR京浜東北・根岸線 / 蕨 徒歩 4分真心と誠意実第一で、お仕事させて頂きます。詳細を見るとりあえず保存お問合せ(無料)
b’CASA千葉野田Ⅲre-born 201物件画像数11周辺画像数0動画数02.9万円管理費等:5,000円敷金なし礼金なし保証金なし間取1K専有面積19.83㎡構造木造物件種目アパート階建/階2階建/2階築年月1986年2月(築39年10ヶ月)所在地野田市山崎交通東武野田線 運河駅 徒歩15分東武野田線 梅郷駅 徒歩25分不動産会社:(株)さくらスタイル 令和ハウジング 詳細を見るとりあえず保存お問合せ(無料)