協栄メゾン代々木 601印刷する
おすすめポイント
80万円 | 敷金2ヶ月 礼金1ヶ月 保証金なし |
|
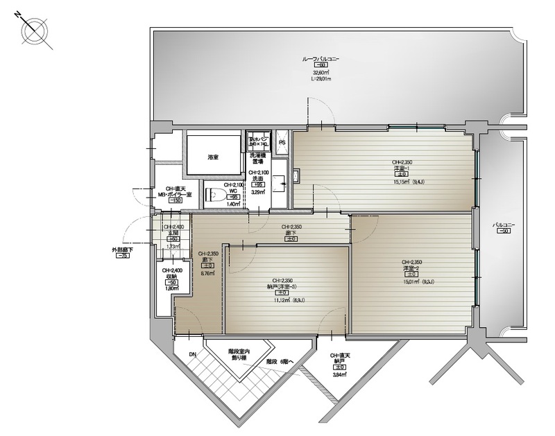
間取4SLDK 面積内芯 182.63㎡ 構造鉄筋コンクリート | 物件種目マンション 階建/階7階建/6階 築年月1971年11月(築54年4ヶ月) |
|
所在地渋谷区代々木2丁目 |
|
交通- JR山手線 代々木駅 徒歩8分
- 都営新宿線 新宿駅 徒歩6分
- 小田急線 南新宿駅 徒歩4分
|
|
最新の空室状況や詳しい情報はこちらから!
お問合せ(無料)【お問合せ先】 ホームサーチ(株)
スマートフォンでこの物件の情報をご覧になれます
※携帯電話ではご覧いただけません。
- 交通
JR山手線 代々木駅 徒歩8分
都営新宿線 新宿駅 徒歩6分
小田急線 南新宿駅 徒歩4分
- 所在地
- 渋谷区代々木2丁目
- 物件種目
- マンション
- 賃料
- 80万円
- 管理費等
- 敷金 / 保証金
- 2ヶ月 / なし
- 礼金
- 1ヶ月
- 敷引
- 保証金償却
- その他一時金
- くらしーど24:16,500円(契約時)
- 保険等
- 加入要 /
- 間取り
- 4SLDK
- 専有面積
- 内芯 182.63㎡
- 築年月
- 1971年11月(築54年4ヶ月)
- 階建/階
- 7階建/6階
- 駐車場
- 要問い合せ
- 建物構造
- 鉄筋コンクリート
- 建物名・部屋番号
- 協栄メゾン代々木 601
- 主要採光面
- 小学校
- 中学校
- 設備
- 都市ガス エレベーター 分譲タイプ 敷地内ごみ置き場 水道公営 専用バス トイレ2ヶ所 シャワー 食器洗浄乾燥機 エアコン ルーフバルコニー リノベーション メゾネット 子供可 外国籍可 法人契約希望
- 建物状況調査
(インスペクション)
- 備考
- 賃貸保証等: 利用必須
管理方式: 日勤
維持費等: くらしーど24: 16,500円(契約時)
- 災害時被災者
優先住宅 - ※内容の詳細はこちらをご覧ください。
- 契約期間
- 2年間
- 現況
- 改装中
- 条件等
- 入居可能時期
- 予定 2026年4月
- 更新料
- 1ヶ月
- 物件番号
- 72589052
- 情報公開日
- 2026/02/26
- 次回更新予定日
- 2026/03/28
渋谷区代々木2丁目周辺の地図
地図を見る※地図上に表示される家マークのアイコンは付近住所に所在することを表すものであり、実際の物件所在地とは異なる場合がございます。必ず不動産会社におたずねください。
情報提供会社

- 交通東京メトロ南北線 / 麻布十番 徒歩 12分
- 住所〒108-0074 東京都港区高輪2丁目16-49カムロ高輪ビル2階
- TEL03-5447-7118
- FAX03-5447-7119
取引態様:専任媒介
東京都知事免許(4) 第0088551号
所属協会:(公社)全日本不動産協会
公正取引協議会:不動産公正取引協議会
スマートフォンで
この不動産会社の情報を
ご覧になれます
※携帯電話ではご覧いただけません。
賃貸住宅を借りるなら、物件検索サイト「ラビーネット不動産」で。賃貸マンション・賃貸アパート・賃貸一戸建ての物件情報を住みたいエリア/沿線・駅から検索し、賃料/間取り/駅からの徒歩といった希望条件で絞り込むことができます。このほか、物件の探し方から契約、引越、入居時の手続まで、お部屋探しに役立つ情報が満載。このサイトは全国組織の業界団体である公益社団法人全日本不動産協会が運営する不動産情報サイトのため、安心して物件をお探しいただけます。住まい探しのことならラビーネット不動産にお任せください!