シェリオン 203
- 賃料
- 5.5万円
- 管理費等
- 7,000円
- 敷金 / 保証金
- 5万円 / なし
- 礼金
- 5万円
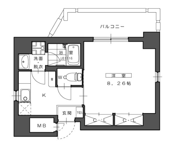
- 間取り
- 1K
- 面積
- 28.73㎡
- 構造
- 鉄筋コンクリート
- 物件種目
- マンション
- 階建/階
- 8階建/2階
- 築年月
- 2006年7月(築19年5ヶ月)
- 交通
京都市営地下鉄烏丸線 今出川駅 徒歩24分
京福電鉄北野線 北野白梅町駅 徒歩22分
嵯峨野線 円町駅 徒歩39分
- 所在地
- 敷引
- 保証金償却
- その他一時金
- 新規事務手数料:11,000円(契約時)、エアコンクリーニング(希望者のみ、1台につき):13,200円(契約時)、ピッキング対策鍵(希望者のみ、2本 22,000円):19,800円(契約時)、車庫証明(希望者のみ、1台につき):5,500円(契約時)
- 保険等
- 加入要 /
- 駐車場
- なし
- 建物構造
- 鉄筋コンクリート
- 建物名・部屋番号
- シェリオン 203
- 主要採光面
- 北向き
- 小学校
- 中学校
- 設備
- 都市ガス 排水下水 エレベーター 駐輪場 バイク置き場 水道公営 専用バス 専用トイレ バス・トイレ別 シャワー 浴室乾燥機 独立洗面台 洗面台 洗面所 洗髪洗面化粧台 室内洗濯機置場 洗濯機置場 ガスコンロ可 2口コンロ 給湯 エアコン 床暖房 暖房 24時間換気システム 個別空調 複層ガラス 冷房 収納スペース シューズボックス 玄関収納 BS端子 光ファイバー CS 地上デジタル放送 インターネット対応 オートロック 24時間セキュリティー 火災警報器 防犯ガラス 人感センサー付照明 フローリング 出窓 バルコニー 角部屋 デザイナーズ 外観タイル張り 単身者向き 外国籍可 単身者可
- 建物状況調査
(インスペクション)
- 備考
- 賃貸保証等: 要保証会社、及び連帯保証人 イントラスト 初回保証料:月額費用合計の50%(外国人100%)最低保証料2万円(外国人4万円) 年間保証料:無(10年間)
管理方式: 巡回
維持費等: 更新事務手数料: 11,000円(更新時)、新規事務手数料: 11,000円(契約時)、火災保険料: 500円(毎月)、水道代(超過分実費): 2,500円(毎月)、エアコンクリーニング(希望者のみ、1台につき): 13,200円(契約時)、ピッキング対策鍵(希望者のみ、2本 22,000円): 19,800円(契約時)、車庫証明(希望者のみ、1台につき): 5,500円(契約時)、引落手数料: 250円(毎月)、インターネット代(スムネット利用者のみ、10Gbps超高速インターネット6,930円): 4,160円(毎月)
上記記載条件は1年更新(更新料3万)+スムネット(インターネット代理店)利用有の条件です。
1年更新+スムネット利用無→礼金2万円プラス
2年更新(正社員限定、社会保険要、更新料無)。+スムネット利用有→礼金4万円プラス
2年更新+スムネット利用無→礼金6万円プラス
卒業合せの定期借家プラン(大学生限定、1K・1DK対象、更新料無)礼金は1年更新の各プランと同額、卒業年の2月25日まで。3月20日までは礼金1万円プラス
契約書発行後のキャンセルはキャンセル料家賃の1か月分が発生します。
- 災害時被災者
優先住宅 - ※内容の詳細はこちらをご覧ください。
- 契約期間
- 1年間
- 現況
- 居住中
- 条件等
- 入居可能時期
- 予定 2026年1月29日
- 更新料
- 3万円
- 物件番号
- 71185202
- 情報公開日
- 2025/12/22
- 次回更新予定日
- 2026/01/21
情報提供会社
- 交通
-
- 住所
- 〒600-8499 京都府京都市下京区四条通堀川西入唐津屋町524番地3
- TEL
- 075-803-1214
- FAX
- 075-803-1215
- 取引態様
- 専任媒介
- 免許番号
- 京都府知事免許(7) 第0010078号
- 所属協会
- (公社)全日本不動産協会
- 公正取引協議会
- 不動産公正取引協議会
賃貸住宅を借りるなら、物件検索サイト「ラビーネット不動産」で。賃貸マンション・賃貸アパート・賃貸一戸建ての物件情報を住みたいエリア/沿線・駅から検索し、賃料/間取り/駅からの徒歩といった希望条件で絞り込むことができます。このほか、物件の探し方から契約、引越、入居時の手続まで、お部屋探しに役立つ情報が満載。このサイトは全国組織の業界団体である公益社団法人全日本不動産協会が運営する不動産情報サイトのため、安心して物件をお探しいただけます。住まい探しのことならラビーネット不動産にお任せください!