高田馬場3丁目戸建印刷する
おすすめポイント
24.8万円 | 敷金2ヶ月 礼金1ヶ月 保証金なし |
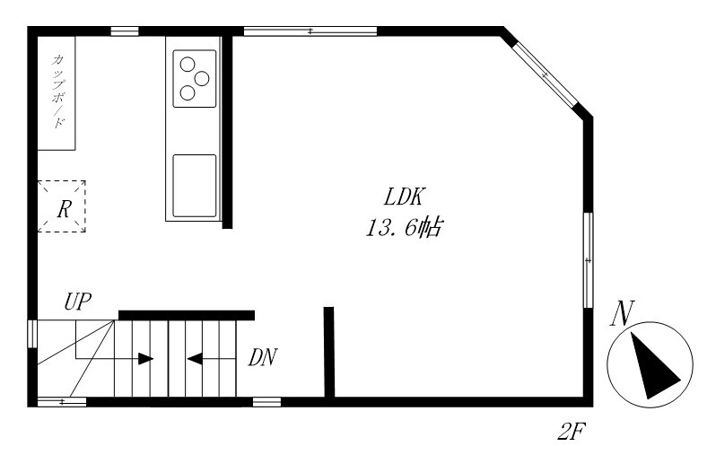
間取2LDK 面積63.38㎡ 構造木造 | 物件種目戸建住宅 階建/階3階建/ 築年月2022年1月(築4年1ヶ月) |
所在地新宿区高田馬場3丁目 | |
交通
| |
おすすめポイント
24.8万円 | 敷金2ヶ月 礼金1ヶ月 保証金なし |
間取2LDK 面積63.38㎡ 構造木造 | 物件種目戸建住宅 階建/階3階建/ 築年月2022年1月(築4年1ヶ月) |
所在地新宿区高田馬場3丁目 | |
交通
| |
JR山手線 高田馬場駅 徒歩8分
東京メトロ東西線 高田馬場駅 徒歩8分
西武新宿線 下落合駅 徒歩7分
※地図上に表示される家マークのアイコンは付近住所に所在することを表すものであり、実際の物件所在地とは異なる場合がございます。必ず不動産会社におたずねください。

取引態様:一般媒介
東京都知事免許(5) 第0082643号
所属協会:(公社)全日本不動産協会
公正取引協議会:不動産公正取引協議会
スマートフォンで
この不動産会社の情報を
ご覧になれます
※携帯電話ではご覧いただけません。
JR山手線 高田馬場駅 徒歩8分
東京メトロ東西線 高田馬場駅 徒歩8分
西武新宿線 下落合駅 徒歩7分
(050-3187-4022)