田町N借家 8DK印刷する
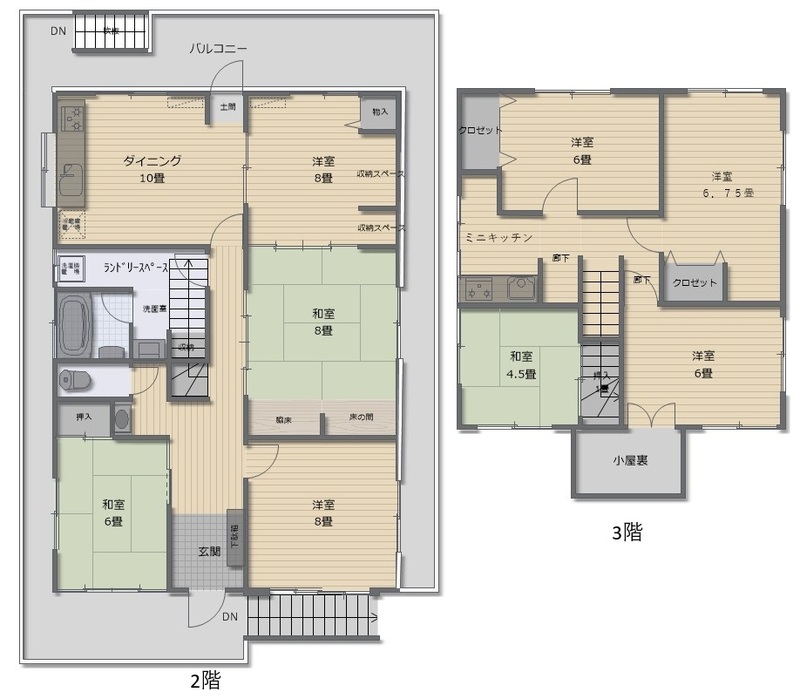
おすすめポイント利便性の良い津山市中心部に位置する賃貸中古住宅です。8DKあるので大家族でも広々使うことができます。充実した設備や広いバルコニー、家具家電付!2Fと3Fどちらにもキッチンがあるので二世帯住宅も可能です。
12万円 | 敷金24万円 礼金12万円 保証金なし |
間取8DK 面積壁芯 306.74㎡ 構造木造 | 物件種目戸建住宅 階建/階3階建/ 築年月1979年6月20日(築46年5ヶ月) |
所在地津山市田町 | |
交通
| |
おすすめポイント利便性の良い津山市中心部に位置する賃貸中古住宅です。8DKあるので大家族でも広々使うことができます。充実した設備や広いバルコニー、家具家電付!2Fと3Fどちらにもキッチンがあるので二世帯住宅も可能です。
12万円 | 敷金24万円 礼金12万円 保証金なし |
間取8DK 面積壁芯 306.74㎡ 構造木造 | 物件種目戸建住宅 階建/階3階建/ 築年月1979年6月20日(築46年5ヶ月) |
所在地津山市田町 | |
交通
| |
JR姫新線(佐用~新見) 津山駅 裁判所前 バス11分 徒歩2分
※地図上に表示される家マークのアイコンは付近住所に所在することを表すものであり、実際の物件所在地とは異なる場合がございます。必ず不動産会社におたずねください。

取引態様:一般媒介
岡山県知事免許(9) 第0003250号
所属協会:(公社)全日本不動産協会
公正取引協議会:不動産公正取引協議会
宅地~事業用物件、賃貸物件のことまでお気軽にご相談下さい。
スマートフォンで
この不動産会社の情報を
ご覧になれます
※携帯電話ではご覧いただけません。
おすすめポイント利便性の良い津山市中心部に位置する賃貸中古住宅です。8DKあるので大家族でも広々使うことができます。充実した設備や広いバルコニー、家具家電付!2Fと3Fどちらにもキッチンがあるので二世帯住宅も可能です。
JR姫新線(佐用~新見) 津山駅 裁判所前 バス11分 徒歩2分
(0868-25-0001)