四街道テナント+4LDK
おすすめポイント満室で賃貸中の1棟商業ビル。年264万円の家賃収入見込み、価格2980万円。四街道駅徒歩21分、1996年築。
・現在満室で賃貸中のため、購入後すぐに家賃収入が見込めます
・想定年間収入264万円(毎月の収入の目安が立てやすいです)
・表面利回り8.85%で、収入重視の方に向きます
・1棟商業ビルのため、区分より管理の手間がまとまりやすいです
・1996年4月築、価格2980万円で始めやすい金額帯です
- 価格
- 2,980万円
- 管理費等
- 使用部分面積
- 壁芯 230.71㎡
- 土地面積
- 267.08㎡
- 物件種目
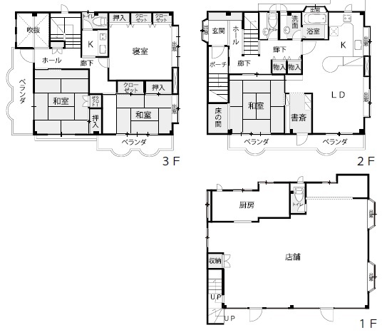
- 店舗付住宅(全部)
- 築年月
- 1996年4月(築30年0ヶ月)
- 建物構造
- 鉄骨造
- 階建/階
- 3階建/
- 駐車場
- なし
- 用途地域
- 1種住居
- 敷金/保証金
- なし /
- 修繕積立金
- 借地期間
- 地代(月額)
- 権利金
- その他一時金
- 維持費等
- 私道負担面積
- 建物名・部屋番号
- 四街道テナント+4LDK
- 接道状況
- 都市計画
- 市街化
- 小学校
- 中学校
- 建ぺい率
- 60%
- 容積率
- 200%
- 地勢
- 地目
- 土地権利
- 所有権
- 国土法届出
- 総戸数
- 2戸
- 設備
- 都市ガス 排水下水
- 備考
- 利回り: 8.8%
年間想定家賃収入: 264万円
- 引渡可能時期
- 相談
- 現況
- 賃貸中
- 条件等
- 物件番号
- 73355194
- 情報公開日
- 2026/03/27
- 次回更新予定日
- 2026/04/26
情報提供会社
- 交通
- JR山手線 / 御徒町 徒歩 3分
- 住所
- 〒110-0005 東京都台東区上野3丁目10-1ファーストビル1階
- TEL
- 03-5807-7251
- FAX
- 03-5807-7253
- 取引態様
- 仲介
- 免許番号
- 東京都知事免許(4) 第0086425号
- 所属協会
- (公社)全日本不動産協会
- 公正取引協議会
- 不動産公正取引協議会
賃貸住宅を借りるなら、物件検索サイト「ラビーネット不動産」で。賃貸マンション・賃貸アパート・賃貸一戸建ての物件情報を住みたいエリア/沿線・駅から検索し、賃料/間取り/駅からの徒歩といった希望条件で絞り込むことができます。このほか、物件の探し方から契約、引越、入居時の手続まで、お部屋探しに役立つ情報が満載。このサイトは全国組織の業界団体である公益社団法人全日本不動産協会が運営する不動産情報サイトのため、安心して物件をお探しいただけます。住まい探しのことならラビーネット不動産にお任せください!