店舗 本町5丁目
おすすめポイント*~*<おすすめPOINT>*~*
●国道39号線に面しています!
●接道(南側公道・北側公道)二方道路です☆
●店舗の隣にある古家は解体予定です!
*~*<周辺環境>*~*
●西小学校まで徒歩14分、光西中学校まで徒歩14分
●ローソン 北見本町五丁目店まで徒歩2分
●北見とん田郵便局まで徒歩3分
●本町第2公園まで徒歩2分
〈その他〉
●公簿売買・現状渡し
●前面道路都市ガス管あり(敷地内に引込む際、別途費用がかかります)
●店舗の隣にある、古家は解体し更地となります
- 価格
- 2,900万円
- 管理費等
- 使用部分面積
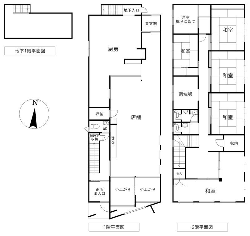
- 壁芯 299.09㎡
- 土地面積
- 819.39㎡
- 物件種目
- 店舗(全部)
- 築年月
- 1995年11月(築30年4ヶ月)
- 建物構造
- 木造
- 階建/階
- 2階建/
- 駐車場
- 空きあり
- 用途地域
- 準工業
- 敷金/保証金
- なし /
- 修繕積立金
- 借地期間
- 地代(月額)
- 権利金
- その他一時金
- 維持費等
- 私道負担面積
- 建物名・部屋番号
- 店舗 本町5丁目
- 接道状況
- ニ方道路 南向き27.27m 公道 接面17.6m, 北向き8m 公道 接面16.18m
- 都市計画
- 市街化
- 小学校
- 西小学校
- 中学校
- 光西中学校
- 建ぺい率
- 60%
- 容積率
- 200%
- 地勢
- 地目
- 宅地
- 土地権利
- 所有権
- 国土法届出
- 総戸数
- 設備
- 備考
- 法令等制限: 景観法、法22条区域、宅地造成工事規制区域
*~*<おすすめPOINT>*~*
●国道39号線に面しています!
●接道(南側公道・北側公道)二方道路です☆
●店舗の隣にある古家は解体予定です!
*~*<周辺環境>*~*
●西小学校まで徒歩14分、光西中学校まで徒歩14分
●ローソン 北見本町五丁目店まで徒歩2分
●北見とん田郵便局まで徒歩3分
●本町第2公園まで徒歩2分
〈その他〉
●公簿売買・現状渡し
●前面道路都市ガス管あり(敷地内に引込む際、別途費用がかかります)
●店舗の隣にある、古家は解体し更地となります
- 引渡可能時期
- 相談
- 現況
- 空き
- 条件等
- 物件番号
- 70069202
- 情報公開日
- 2025/10/20
- 次回更新予定日
- 2026/04/18
情報提供会社
- 交通
- JR石北本線 / 北見 徒歩 15分
- 住所
- 〒090-0032 北海道北見市三住町17番地2
- TEL
- 0157-57-5710
- FAX
- 0157-57-5716
- 取引態様
- 一般媒介
- 免許番号
- 北海道知事免許 オホ(1)第0000449号
- 所属協会
- (公社)全日本不動産協会
- 公正取引協議会
- 不動産公正取引協議会
賃貸住宅を借りるなら、物件検索サイト「ラビーネット不動産」で。賃貸マンション・賃貸アパート・賃貸一戸建ての物件情報を住みたいエリア/沿線・駅から検索し、賃料/間取り/駅からの徒歩といった希望条件で絞り込むことができます。このほか、物件の探し方から契約、引越、入居時の手続まで、お部屋探しに役立つ情報が満載。このサイトは全国組織の業界団体である公益社団法人全日本不動産協会が運営する不動産情報サイトのため、安心して物件をお探しいただけます。住まい探しのことならラビーネット不動産にお任せください!