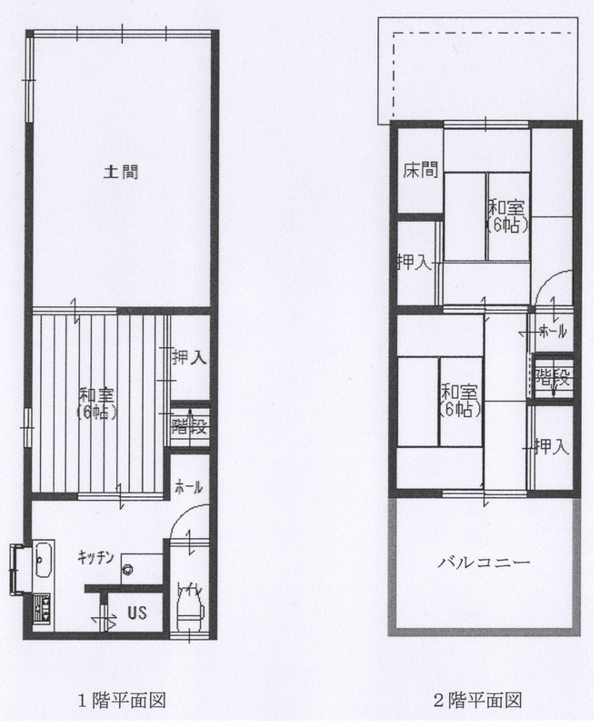
守口市藤田町 店舗付き住宅印刷する
おすすめポイント2024年全室内装工事施工済み 収益物件としていかがでしょうか
1,200万円 | 使用部分面積59㎡ 用途地域2種中高 土地面積45.77㎡ |
建物構造木造 階建/階2階建/ 駐車場なし | 物件種目店舗付住宅(全部) 築年月1963年3月(築63年0ヶ月) |
所在地守口市藤田町5丁目 | |
交通
| |
おすすめポイント2024年全室内装工事施工済み 収益物件としていかがでしょうか
1,200万円 | 使用部分面積59㎡ 用途地域2種中高 土地面積45.77㎡ |
建物構造木造 階建/階2階建/ 駐車場なし | 物件種目店舗付住宅(全部) 築年月1963年3月(築63年0ヶ月) |
所在地守口市藤田町5丁目 | |
交通
| |
京阪本線 大和田駅 徒歩5分
※地図上に表示される家マークのアイコンは付近住所に所在することを表すものであり、実際の物件所在地とは異なる場合がございます。必ず不動産会社におたずねください。
取引態様:売主
大阪府知事免許(3) 第0057367号
所属協会:(公社)全日本不動産協会
公正取引協議会:不動産公正取引協議会
現場経験40年 実績の工務店
スマートフォンで
この不動産会社の情報を
ご覧になれます
※携帯電話ではご覧いただけません。
おすすめポイント2024年全室内装工事施工済み 収益物件としていかがでしょうか
京阪本線 大和田駅 徒歩5分
(072-826-1661)