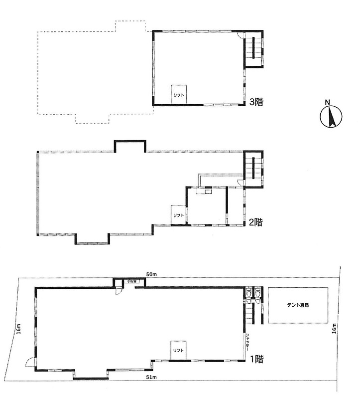
イトウ倉庫物件画像数6周辺画像数0動画数014,900万円使用部分面積内芯 662.68㎡用途地域工業地域土地面積826.49㎡建物構造鉄骨造階建/階3階建/駐車場なし物件種目倉庫(全部)築年月1985年9月30日(築40年5ヶ月)所在地春日部市豊野町2丁目交通東武伊勢崎線 一ノ割駅 徒歩37分不動産会社:アオイ土地建物(株)東武伊勢崎・大師線 / 春日部 徒歩 5分お気軽にお問い合わせ下さい。メール等教えて頂ければ、物件資料をお送りします。詳細を見るとりあえず保存お問合せ(無料)
あすなろコーポ 2階物件画像数4周辺画像数0動画数0840万円管理費等:10,000円/月使用部分面積内芯 71.21㎡用途地域1種住居土地面積524.08㎡建物構造鉄骨鉄筋コンクリート階建/階地上7階, 地下1階建/2階駐車場なし物件種目マンション(一部)築年月1974年10月(築51年5ヶ月)所在地春日部市中央5丁目交通不動産会社:リルート(株) 詳細を見るとりあえず保存お問合せ(無料)
あすなろコーポ 2階物件画像数3周辺画像数0動画数0880万円管理費等:11,467円/月使用部分面積内芯 81.67㎡用途地域1種住居土地面積524.08㎡建物構造鉄骨鉄筋コンクリート階建/階地上7階, 地下1階建/2階駐車場なし物件種目マンション(一部)築年月1974年10月(築51年5ヶ月)所在地春日部市中央5丁目交通不動産会社:リルート(株) 詳細を見るとりあえず保存お問合せ(無料)
あすなろコーポ 2階物件画像数4周辺画像数0動画数0930万円管理費等:11,187円/月使用部分面積内芯 79.67㎡用途地域1種住居土地面積524.08㎡建物構造鉄骨鉄筋コンクリート階建/階地上7階, 地下1階建/2階駐車場なし物件種目マンション(一部)築年月1974年10月(築51年5ヶ月)所在地春日部市中央5丁目交通不動産会社:リルート(株) 詳細を見るとりあえず保存お問合せ(無料)