NEW
藤和ライブタウン藤ヶ丘 204印刷するおすすめポイント
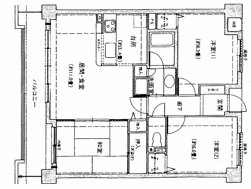
1,100万円 管理費等:18,240円/月 | 使用部分面積壁芯 71.08㎡ 用途地域1種中高 土地面積1133㎡ |
|
建物構造鉄筋コンクリート 階建/階4階建/2階 駐車場空きあり 無料/月 | 物件種目マンション(一部) 築年月1994年8月(築31年4ヶ月) |
|
所在地長久手市上川原 |
|
交通- 名古屋市営地下鉄東山線 藤が丘駅 徒歩17分
- リニモ 藤が丘駅 徒歩17分
|
|
最新の空室状況や詳しい情報はこちらから!
お問合せ(無料)【お問合せ先】 (有)タートル21
スマートフォンでこの物件の情報をご覧になれます
※携帯電話ではご覧いただけません。
- 交通
名古屋市営地下鉄東山線 藤が丘駅 徒歩17分
リニモ 藤が丘駅 徒歩17分
- 所在地
- 長久手市上川原
- 物件種目
- マンション(一部)
- 価格
- 1,100万円
- 管理費等
- 18,240円
- 敷金 / 保証金
- なし /
- 修繕積立金
- 14,520円
- 借地期間
- 地代(月額)
- 権利金
- その他一時金
- 維持費等
- 使用部分面積
- 壁芯 71.08㎡
- 土地面積
- 1133㎡
- 私道負担面積
- 築年月
- 1994年8月(築31年4ヶ月)
- 階建/階
- 4階建/2階
- 建物構造
- 鉄筋コンクリート
- 建物名・部屋番号
- 藤和ライブタウン藤ヶ丘 204
- 小学校
- 中学校
- 駐車場
- 空きあり 無料/月
- 接道状況
- 都市計画
- 市街化
- 用途地域
- 1種中高
- 建ぺい率
- 容積率
- 地勢
- 地目
- 土地権利
- 所有権
- 国土法届出
- 総戸数
- 22戸
- 設備
- 都市ガス 排水下水 駐輪場 水道公営 都市ガス 排水下水 バス・トイレ別 洗面所 洗濯機置場 カウンターキッチン オートロック オーナーチェンジ ペット対応
- 備考
- 主要採光面: 南向き
施工会社: ㈱フジタ
年間想定家賃収入: 1,140,000万円
オーナチェンジ物件ですので、賃貸中です。
- 引渡可能時期
- 相談
- 現況
- 居住中
- 条件等
- 物件番号
- 71080083
- 情報公開日
- 2025/12/15NEW
- 次回更新予定日
- 2026/01/14
長久手市上川原周辺の地図
地図を見る※地図上に表示される家マークのアイコンは付近住所に所在することを表すものであり、実際の物件所在地とは異なる場合がございます。必ず不動産会社におたずねください。
情報提供会社

- 交通
- 住所〒488-0838 愛知県尾張旭市庄中町1丁目8-19
- TEL0561-51-1110
- FAX0561-51-1153
取引態様:売主
愛知県知事免許(5) 第0019174号
所属協会:(公社)全日本不動産協会
公正取引協議会:不動産公正取引協議会
スマートフォンで
この不動産会社の情報を
ご覧になれます
※携帯電話ではご覧いただけません。
賃貸住宅を借りるなら、物件検索サイト「ラビーネット不動産」で。賃貸マンション・賃貸アパート・賃貸一戸建ての物件情報を住みたいエリア/沿線・駅から検索し、賃料/間取り/駅からの徒歩といった希望条件で絞り込むことができます。このほか、物件の探し方から契約、引越、入居時の手続まで、お部屋探しに役立つ情報が満載。このサイトは全国組織の業界団体である公益社団法人全日本不動産協会が運営する不動産情報サイトのため、安心して物件をお探しいただけます。住まい探しのことならラビーネット不動産にお任せください!