美郷町六郷字赤城印刷する
おすすめポイント
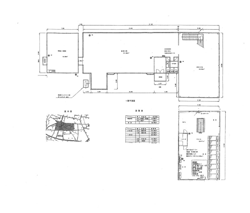
820万円 | 使用部分面積壁芯 466.78㎡ 用途地域準工業 土地面積1476.44㎡ |
建物構造鉄骨造 階建/階2階建/ 駐車場空きあり 無料/月 | 物件種目工場(全部) 築年月1979年12月13日(築46年3ヶ月) |
所在地仙北郡美郷町六郷字赤城 | |
交通
| |
おすすめポイント
820万円 | 使用部分面積壁芯 466.78㎡ 用途地域準工業 土地面積1476.44㎡ |
建物構造鉄骨造 階建/階2階建/ 駐車場空きあり 無料/月 | 物件種目工場(全部) 築年月1979年12月13日(築46年3ヶ月) |
所在地仙北郡美郷町六郷字赤城 | |
交通
| |
JR奥羽本線(新庄~青森) 飯詰駅 徒歩48分
※地図上に表示される家マークのアイコンは付近住所に所在することを表すものであり、実際の物件所在地とは異なる場合がございます。必ず不動産会社におたずねください。
取引態様:専任媒介
秋田県知事免許(2) 第0002259号
所属協会:(公社)全日本不動産協会
公正取引協議会:不動産公正取引協議会
土地売買から解体まで行っています。お見積り無料ですので、お気軽にご連絡ください。
スマートフォンで
この不動産会社の情報を
ご覧になれます
※携帯電話ではご覧いただけません。
1 / 10
JR奥羽本線(新庄~青森) 飯詰駅 徒歩48分
(018-838-6817)