岩見沢市1条東1丁目アパート2棟(B・C)

敷地配置図

B棟外観1

C棟外観1

B棟外観2

B棟外観3

C棟外観2

C棟外観3

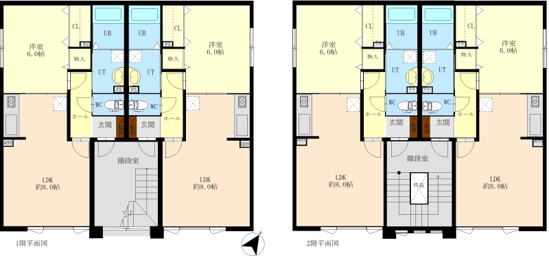
B棟間取

C棟間取

敷地配置図

B棟外観1
- 価格
- 9,000万円
- 管理費等
- 使用部分面積
- 壁芯 373.25㎡
- 土地面積
- 373.25㎡
- 物件種目
- アパート(全部)
- 築年月
- 2004年2月(築21年10ヶ月)
- 建物構造
- 軽量鉄骨
- 階建/階
- 2階建/
- 駐車場
- なし
- 用途地域
- 近隣商業
- 交通
JR函館本線(小樽~旭川) 岩見沢駅 徒歩8分
- 所在地
- 敷金/保証金
- なし /
- 修繕積立金
- 借地期間
- 地代(月額)
- 権利金
- その他一時金
- 維持費等
- 私道負担面積
- なし
- 建物名・部屋番号
- 岩見沢市1条東1丁目アパート2棟(B・C)
- 接道状況
- 北東向き9m 公道 接面20m
- 都市計画
- 非線引
- 小学校
- 中学校
- 建ぺい率
- 80%
- 容積率
- 300%
- 地勢
- 平坦
- 地目
- 宅地
- 土地権利
- 所有権
- 国土法届出
- 不要
- 総戸数
- 12戸
- 私道負担面積
- なし
- 設備
- プロパンガス 排水下水
- 備考
- 管理方式: 巡回
施工会社: パナホーム
利回り: 8.8%
年間想定家賃収入: 798万円
- 12室中、11室賃貸中(令和6年9月15日現在)
- 岩見沢駅 徒歩8分
- 1LDK×12戸(2棟合計)
- 想定年間収入798万円
- 想定満室利回り8.86%
- 築年月①2004年5月築 ②2005年3月築
- パナホーム施工物件
※アパート2棟は不可分一体売却です。
※総戸数は2棟合計です。
※間取り内訳:B棟 1LDK×8戸 C棟 1LDK×6戸
※建物情報(築年月・建物面積・建築確認番号)はB棟の表示です。
◆C棟
建物構造:軽量鉄骨造2階建
築年月:2005年3月築
建物面積:186.62㎡
建築確認番号:第H16確認建築空知支庁03294号
- 引渡可能時期
- 相談
- 現況
- 賃貸中
- 条件等
- 物件番号
- 63325091
- 情報公開日
- 2024/09/30
- 次回更新予定日
- 2026/01/10
情報提供会社
- 交通
- 札幌市営地下鉄南北線 / 澄川 徒歩 15分
- 住所
- 〒062-0922 北海道札幌市豊平区中の島二条10丁目1番22号
- TEL
- 011-598-8984
- FAX
- 011-598-8843
- 取引態様
- 専任媒介
- 免許番号
- 北海道知事免許 石狩(1)第0009312号
- 所属協会
- (公社)全日本不動産協会
- 公正取引協議会
- 不動産公正取引協議会
賃貸住宅を借りるなら、物件検索サイト「ラビーネット不動産」で。賃貸マンション・賃貸アパート・賃貸一戸建ての物件情報を住みたいエリア/沿線・駅から検索し、賃料/間取り/駅からの徒歩といった希望条件で絞り込むことができます。このほか、物件の探し方から契約、引越、入居時の手続まで、お部屋探しに役立つ情報が満載。このサイトは全国組織の業界団体である公益社団法人全日本不動産協会が運営する不動産情報サイトのため、安心して物件をお探しいただけます。住まい探しのことならラビーネット不動産にお任せください!