おすすめポイント
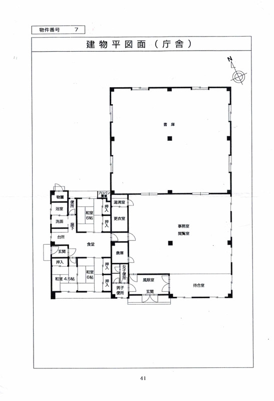
1,000万円 | 使用部分面積壁芯 57.02㎡ 用途地域 土地面積1011.76㎡ |
|
建物構造鉄筋コンクリート 階建/階1階建/1階 駐車場なし | 物件種目事務所(一部) 築年月1976年3月26日(築49年8ヶ月) |
|
所在地中新川郡立山町岩峅寺 |
|
| 交通 |
|
最新の空室状況や詳しい情報はこちらから!
お問合せ(無料)【お問合せ先】 (株)三桃宝エステート
スマートフォンでこの物件の情報をご覧になれます
※携帯電話ではご覧いただけません。
- 交通
富山地鉄立山線 岩峅寺駅 徒歩5分
- 所在地
- 中新川郡立山町岩峅寺
- 物件種目
- 事務所(一部)
- 価格
- 1,000万円
- 管理費等
- 敷金 / 保証金
- なし /
- 修繕積立金
- 借地期間
- 地代(月額)
- 権利金
- その他一時金
- 維持費等
- 使用部分面積
- 壁芯 57.02㎡
- 土地面積
- 1011.76㎡
- 私道負担面積
- なし
- 築年月
- 1976年3月26日(築49年8ヶ月)
- 階建/階
- 1階建/1階
- 建物構造
- 鉄筋コンクリート
- 建物名・部屋番号
- 旧法務局
- 小学校
- 中学校
- 駐車場
- なし
- 接道状況
- 都市計画
- 非線引
- 用途地域
- 建ぺい率
- 60%
- 容積率
- 200%
- 地勢
- 平坦
- 地目
- 宅地
- 土地権利
- 所有権
- 国土法届出
- 総戸数
- 設備
- ガス無し 排水下水 浄化槽 駐車場2台分 閑静な住宅街 水道公営 専用バス 専用トイレ 浄化槽 バス・トイレ別 トイレ2ヶ所 男女別トイレ 洗面台 エアコン 収納スペース 和室 空き家バンク登録物件
- 備考
- 主要採光面: 東向き
法令等制限: 下水道負担金賦課済み 接続の場合は、工事費用など掛かります。(男性・女性用トイレを使用する場合は、下水道に接続した方が良いです。) オール電化
- 引渡可能時期
- 相談
- 現況
- 空き
- 条件等
- 物件番号
- 62266580
- 情報公開日
- 2024/08/04
- 次回更新予定日
- 2025/08/01
中新川郡立山町岩峅寺周辺の地図
地図を見る※地図上に表示される家マークのアイコンは付近住所に所在することを表すものであり、実際の物件所在地とは異なる場合がございます。必ず不動産会社におたずねください。
情報提供会社

- 交通富山地鉄立山線 / 五百石 徒歩 10分
- 住所〒930-0214 富山県中新川郡立山町五百石45
- TEL076-463-0508
- FAX076-463-2262
取引態様:専任媒介
富山県知事免許(1) 第0003249号
所属協会:(公社)全日本不動産協会
公正取引協議会:不動産公正取引協議会
アットホームな雰囲気な事務所です。お気軽にお問い合わせください。
スマートフォンで
この不動産会社の情報を
ご覧になれます
※携帯電話ではご覧いただけません。
賃貸住宅を借りるなら、物件検索サイト「ラビーネット不動産」で。賃貸マンション・賃貸アパート・賃貸一戸建ての物件情報を住みたいエリア/沿線・駅から検索し、賃料/間取り/駅からの徒歩といった希望条件で絞り込むことができます。このほか、物件の探し方から契約、引越、入居時の手続まで、お部屋探しに役立つ情報が満載。このサイトは全国組織の業界団体である公益社団法人全日本不動産協会が運営する不動産情報サイトのため、安心して物件をお探しいただけます。住まい探しのことならラビーネット不動産にお任せください!