新潟ダイカンプラザ遊学館 912印刷する
おすすめポイント
325万円 管理費等:6,300円/月 | 総戸数1戸 バルコニー |
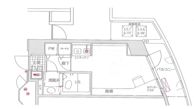
間取1R 専有面積内芯 20.49㎡ 構造鉄骨鉄筋コンクリート | 物件種目マンション 階建/階14階建/9階 築年月1992年3月(築34年0ヶ月) |
所在地新潟市中央区関新2丁目 | |
交通
| |
おすすめポイント
325万円 管理費等:6,300円/月 | 総戸数1戸 バルコニー |
間取1R 専有面積内芯 20.49㎡ 構造鉄骨鉄筋コンクリート | 物件種目マンション 階建/階14階建/9階 築年月1992年3月(築34年0ヶ月) |
所在地新潟市中央区関新2丁目 | |
交通
| |
JR越後線 関屋駅 徒歩13分
JR越後線 白山駅 徒歩13分
※地図上に表示される家マークのアイコンは付近住所に所在することを表すものであり、実際の物件所在地とは異なる場合がございます。必ず不動産会社におたずねください。
取引態様:一般媒介
新潟県知事免許(8) 第0003761号
所属協会:(公社)全日本不動産協会
公正取引協議会:不動産公正取引協議会
地域と共に不動産に関する事はFOR-1がお手伝いします。
スマートフォンで
この不動産会社の情報を
ご覧になれます
※携帯電話ではご覧いただけません。
1 / 13
JR越後線 関屋駅 徒歩13分
JR越後線 白山駅 徒歩13分
(025-230-4100)