NEW
カクタス田無マンション 304印刷するおすすめポイント採光良好!東南向きの角部屋、豊富な収納の内装リノベーションマンションです。 生活便利な商業施設まで徒歩1分の好立地です。
2,980万円 管理費等:12,000円/月 | 総戸数36戸 バルコニーあり 6.39㎡ |
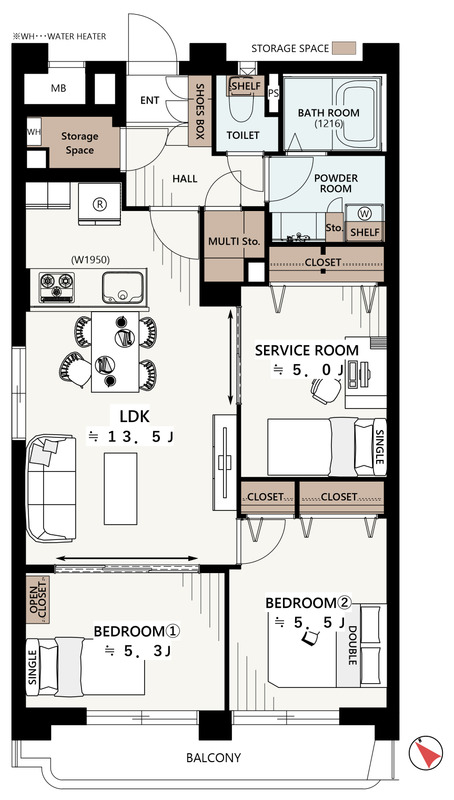
間取2SLDK 専有面積壁芯 67.39㎡ 構造鉄骨鉄筋コンクリート | 物件種目マンション 階建/階9階建/3階 築年月1973年11月中旬(築52年4ヶ月) |
所在地西東京市谷戸町2丁目 | |
| 交通 | |
NEW
カクタス田無マンション 304印刷するおすすめポイント採光良好!東南向きの角部屋、豊富な収納の内装リノベーションマンションです。 生活便利な商業施設まで徒歩1分の好立地です。
2,980万円 管理費等:12,000円/月 | 総戸数36戸 バルコニーあり 6.39㎡ |
間取2SLDK 専有面積壁芯 67.39㎡ 構造鉄骨鉄筋コンクリート | 物件種目マンション 階建/階9階建/3階 築年月1973年11月中旬(築52年4ヶ月) |
所在地西東京市谷戸町2丁目 | |
| 交通 | |
※地図上に表示される家マークのアイコンは付近住所に所在することを表すものであり、実際の物件所在地とは異なる場合がございます。必ず不動産会社におたずねください。

取引態様:仲介
東京都知事免許(5) 第0079738号
所属協会:(公社)全日本不動産協会
公正取引協議会:不動産公正取引協議会
売買・賃貸・管理・リフォーム・小屋キット販売
スマートフォンで
この不動産会社の情報を
ご覧になれます
※携帯電話ではご覧いただけません。
おすすめポイント採光良好!東南向きの角部屋、豊富な収納の内装リノベーションマンションです。 生活便利な商業施設まで徒歩1分の好立地です。
(042-537-7182)