上山市鶴脛町1丁目(かみのやま温泉駅)住宅用地物件画像数5周辺画像数0動画数0243万円坪単価:1.86万円/坪土地面積432.58㎡坪数130.85坪私道負担面積なし土地権利所有権引渡条件現況渡し最適用途住宅用地建ぺい率60%容積率200%所在地上山市鶴脛町1丁目交通山形新幹線 かみのやま温泉駅 徒歩17分不動産会社:(株)ArqJR山形新幹線 / かみのやま温泉 徒歩 6分検査とコストで安心安全な物件をご提案。人と暮らしをアーク(懸け橋)します!詳細を見るとりあえず保存お問合せ(無料)
上山市金瓶字高谷山(かみのやま温泉駅)住宅用地物件画像数6周辺画像数0動画数0980万円坪単価:3.12万円/坪土地面積1040.76㎡坪数314.82坪私道負担面積なし土地権利所有権引渡条件現況渡し最適用途住宅用地建ぺい率60%容積率200%所在地上山市金瓶字高谷山交通山形新幹線 かみのやま温泉駅 徒歩51分不動産会社:(株)ArqJR山形新幹線 / かみのやま温泉 徒歩 6分検査とコストで安心安全な物件をご提案。人と暮らしをアーク(懸け橋)します!詳細を見るとりあえず保存お問合せ(無料)
上山市弁天2丁目(茂吉記念館前駅)事業用地物件画像数8周辺画像数0動画数09,500万円坪単価:6.27万円/坪土地面積5016.24㎡坪数1517.4坪私道負担面積なし土地権利所有権引渡条件現況渡し最適用途事業用地建ぺい率60%容積率200%所在地上山市弁天2丁目交通山形線 茂吉記念館前駅 徒歩17分不動産会社:(株)ArqJR山形新幹線 / かみのやま温泉 徒歩 6分検査とコストで安心安全な物件をご提案。人と暮らしをアーク(懸け橋)します!詳細を見るとりあえず保存お問合せ(無料)
上山市松山3丁目(かみのやま温泉駅)その他用地物件画像数21周辺画像数0動画数0360万円坪単価:4.17万円/坪土地面積285.98㎡坪数86.5坪私道負担面積土地権利所有権引渡条件現況渡し最適用途その他用地建ぺい率50%容積率100%所在地上山市松山3丁目交通山形新幹線 かみのやま温泉駅 徒歩20分不動産会社:桜不動産(株)大阪メトロ谷町線 / 谷町四丁目 徒歩 3分詳細を見るとりあえず保存お問合せ(無料)
上山市金瓶字高谷山(茂吉記念館前駅)店舗用地物件画像数4周辺画像数0動画数03,980万円坪単価:9.02万円/坪土地面積1460.24㎡坪数441.72坪私道負担面積なし土地権利所有権引渡条件現況渡し最適用途店舗用地建ぺい率60%容積率200%所在地上山市金瓶字高谷山交通山形線 茂吉記念館前駅 徒歩10分不動産会社:(株)ArqJR山形新幹線 / かみのやま温泉 徒歩 6分検査とコストで安心安全な物件をご提案。人と暮らしをアーク(懸け橋)します!詳細を見るとりあえず保存お問合せ(無料)
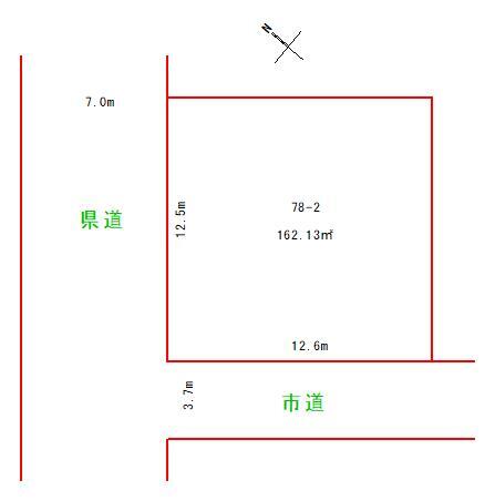
上山市新丁(かみのやま温泉駅)住宅用地物件画像数4周辺画像数0動画数0490万円坪単価:10.0万円/坪土地面積162.13㎡坪数49.04坪私道負担面積なし土地権利所有権引渡条件相談最適用途住宅用地建ぺい率80%容積率200%所在地上山市新丁交通山形線 かみのやま温泉駅 徒歩14分不動産会社:笹原事務所JR奥羽本線 / かみのやま温泉 詳細を見るとりあえず保存お問合せ(無料)