行田市矢場1丁目(行田市駅)住宅用地物件画像数4周辺画像数0動画数0980万円坪単価:12.63万円/坪土地面積256.58㎡坪数77.61坪私道負担面積なし土地権利所有権引渡条件現況渡し最適用途住宅用地建ぺい率60%容積率200%所在地行田市矢場1丁目交通秩父鉄道秩父本線 行田市駅 徒歩9分不動産会社:(有)ベーレンJR高崎線 / 籠原 徒歩 20分詳細を見るとりあえず保存お問合せ(無料)
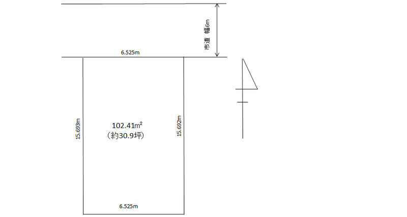
行田市中央(行田市駅)住宅用地物件画像数5周辺画像数0動画数0550万円坪単価:17.76万円/坪土地面積102.41㎡坪数30.97坪私道負担面積なし土地権利所有権引渡条件現況渡し最適用途住宅用地建ぺい率80%容積率400%所在地行田市中央交通秩父鉄道秩父本線 行田市駅 徒歩2分不動産会社:(有)ベーレンJR高崎線 / 籠原 徒歩 20分詳細を見るとりあえず保存お問合せ(無料)