津山市加茂町塔中(美作加茂駅)住宅用地物件画像数2周辺画像数8動画数0400万円坪単価:1.04万円/坪土地面積1282.03㎡坪数387.81坪私道負担面積なし土地権利所有権引渡条件現況渡し最適用途住宅用地建ぺい率60%容積率200%所在地津山市加茂町塔中交通JR因美線 美作加茂駅 加茂支所 バス5分 徒歩5分不動産会社:(有)昴不動産津山線 / 津山 徒歩 15分宅地~事業用物件、賃貸物件のことまでお気軽にご相談下さい。詳細を見るとりあえず保存お問合せ(無料)
津山市高野山西(高野駅)店舗用地物件画像数9周辺画像数9動画数03,412.2万円坪単価:12.01万円/坪土地面積940㎡坪数284.34坪私道負担面積なし土地権利所有権引渡条件現況渡し最適用途店舗用地建ぺい率60%容積率200%所在地津山市高野山西交通JR因美線 高野駅 マルイ高野店前バス停 バス10分 徒歩1分不動産会社:(有)昴不動産津山線 / 津山 徒歩 15分宅地~事業用物件、賃貸物件のことまでお気軽にご相談下さい。詳細を見るとりあえず保存お問合せ(無料)
津山市平福(院庄駅)住宅用地物件画像数11周辺画像数0動画数0800万円坪単価:11.99万円/坪土地面積220.67㎡坪数66.75坪私道負担面積なし土地権利所有権引渡条件現況渡し最適用途住宅用地建ぺい率60%容積率200%所在地津山市平福交通JR姫新線(佐用~新見) 院庄駅 平福診療所口 バス32分 徒歩4分不動産会社:(有)昴不動産津山線 / 津山 徒歩 15分宅地~事業用物件、賃貸物件のことまでお気軽にご相談下さい。詳細を見るとりあえず保存お問合せ(無料)
津山市平福(院庄駅)住宅用地物件画像数11周辺画像数0動画数0840万円坪単価:12.5万円/坪土地面積222.25㎡坪数67.23坪私道負担面積なし土地権利所有権引渡条件現況渡し最適用途住宅用地建ぺい率60%容積率200%所在地津山市平福交通JR姫新線(佐用~新見) 院庄駅 平福診療所口 バス32分 徒歩4分不動産会社:(有)昴不動産津山線 / 津山 徒歩 15分宅地~事業用物件、賃貸物件のことまでお気軽にご相談下さい。詳細を見るとりあえず保存お問合せ(無料)
津山市二宮(津山口駅)住宅用地物件画像数6周辺画像数10動画数01,100万円坪単価:11.05万円/坪土地面積329.35㎡坪数99.62坪私道負担面積なし土地権利所有権引渡条件最適用途住宅用地建ぺい率60%容積率200%所在地津山市二宮交通JR津山線 津山口駅 西循環線 松原中 バス23分 徒歩2分JR津山線 津山駅 西循環線 松原中 バス14分 徒歩2分不動産会社:(有)昴不動産津山線 / 津山 徒歩 15分宅地~事業用物件、賃貸物件のことまでお気軽にご相談下さい。詳細を見るとりあえず保存お問合せ(無料)
津山市小田中(津山駅)住宅用地物件画像数11周辺画像数9動画数0240万円坪単価:8.12万円/坪土地面積97.83㎡坪数29.59坪私道負担面積なし土地権利所有権引渡条件現況渡し最適用途住宅用地建ぺい率60%容積率200%所在地津山市小田中交通JR津山線 津山駅 八子 バス11分 徒歩2分不動産会社:(有)昴不動産津山線 / 津山 徒歩 15分宅地~事業用物件、賃貸物件のことまでお気軽にご相談下さい。詳細を見るとりあえず保存お問合せ(無料)
津山市小田中(津山駅)住宅用地物件画像数7周辺画像数10動画数0900万円坪単価:11.94万円/坪土地面積249.2㎡坪数75.38坪私道負担面積なし土地権利所有権引渡条件現況渡し最適用途住宅用地建ぺい率59%容積率191%所在地津山市小田中交通JR津山線 津山駅 森林管理署前 バス12分 徒歩6分不動産会社:(有)昴不動産津山線 / 津山 徒歩 15分宅地~事業用物件、賃貸物件のことまでお気軽にご相談下さい。詳細を見るとりあえず保存お問合せ(無料)
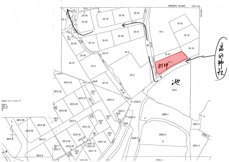
津山市下横野(津山駅)住宅用地物件画像数12周辺画像数0動画数0600万円坪単価:4.21万円/坪土地面積471.31㎡坪数142.57坪私道負担面積土地権利所有権引渡条件現況渡し最適用途住宅用地建ぺい率60%容積率200%所在地津山市下横野交通JR津山線 津山駅 ごんごバス 高田神社入口 バス15分 徒歩5分不動産会社:(有)昴不動産津山線 / 津山 徒歩 15分宅地~事業用物件、賃貸物件のことまでお気軽にご相談下さい。詳細を見るとりあえず保存お問合せ(無料)
津山市高野山西(東津山駅)住宅用地物件画像数11周辺画像数10動画数02,445万円坪単価:15.0万円/坪土地面積539㎡坪数163.04坪私道負担面積なし土地権利所有権引渡条件更地渡し最適用途住宅用地建ぺい率60%容積率200%所在地津山市高野山西交通JR姫新線(佐用~新見) 東津山駅 山西簡易郵便局前 バス5分 徒歩5分JR津山線 津山駅 山西工業団地 バス17分 徒歩3分不動産会社:(有)昴不動産津山線 / 津山 徒歩 15分宅地~事業用物件、賃貸物件のことまでお気軽にご相談下さい。詳細を見るとりあえず保存お問合せ(無料)
津山市田町(津山駅)病院診療所用地物件画像数9周辺画像数0動画数06,950万円坪単価:19.56万円/坪土地面積1175㎡坪数355.43坪私道負担面積なし土地権利所有権引渡条件更地渡し最適用途病院診療所用地建ぺい率80%容積率400%所在地津山市田町交通JR津山線 津山駅 徒歩16分不動産会社:(有)昴不動産津山線 / 津山 徒歩 15分宅地~事業用物件、賃貸物件のことまでお気軽にご相談下さい。詳細を見るとりあえず保存お問合せ(無料)
津山市神戸(院庄駅)工場用地物件画像数14周辺画像数9動画数033,000万円坪単価:9.89万円/坪土地面積11037㎡坪数3338.67坪私道負担面積土地権利所有権引渡条件更地渡し最適用途工場用地建ぺい率60%容積率200%所在地津山市神戸交通JR姫新線(佐用~新見) 院庄駅 吉原 バス5分 徒歩5分不動産会社:(有)昴不動産津山線 / 津山 徒歩 15分宅地~事業用物件、賃貸物件のことまでお気軽にご相談下さい。詳細を見るとりあえず保存お問合せ(無料)
津山市林田(津山駅)住宅用地物件画像数16周辺画像数0動画数01,000万円坪単価:9.49万円/坪土地面積348.41㎡坪数105.39坪私道負担面積なし土地権利所有権引渡条件現況渡し最適用途住宅用地建ぺい率60%容積率200%所在地津山市林田交通JR津山線 津山駅 徒歩29分不動産会社:(有)昴不動産津山線 / 津山 徒歩 15分宅地~事業用物件、賃貸物件のことまでお気軽にご相談下さい。詳細を見るとりあえず保存お問合せ(無料)
津山市上河原(津山駅)住宅用地物件画像数12周辺画像数0動画数0860万円坪単価:9.7万円/坪土地面積293.33㎡坪数88.73坪私道負担面積なし土地権利所有権引渡条件現況渡し最適用途住宅用地建ぺい率60%容積率200%所在地津山市上河原交通JR津山線 津山駅 徒歩51分不動産会社:(有)昴不動産津山線 / 津山 徒歩 15分宅地~事業用物件、賃貸物件のことまでお気軽にご相談下さい。詳細を見るとりあえず保存お問合せ(無料)
津山市山北(津山駅)住宅用地物件画像数12周辺画像数0動画数01,544万円坪単価:8.03万円/坪土地面積636㎡坪数192.38坪私道負担面積土地権利所有権引渡条件最適用途住宅用地建ぺい率60%容積率200%所在地津山市山北交通JR津山線 津山駅 工業高校前 バス13分 徒歩4分不動産会社:(有)昴不動産津山線 / 津山 徒歩 15分宅地~事業用物件、賃貸物件のことまでお気軽にご相談下さい。詳細を見るとりあえず保存お問合せ(無料)
津山市宮尾(美作千代駅)住宅用地物件画像数10周辺画像数7動画数0740万円坪単価:11.4万円/坪土地面積214.74㎡坪数64.95坪私道負担面積なし土地権利所有権引渡条件最適用途住宅用地建ぺい率60%容積率200%所在地津山市宮尾交通JR姫新線(佐用~新見) 美作千代駅 宮尾 バス15分 徒歩1分不動産会社:(有)昴不動産津山線 / 津山 徒歩 15分宅地~事業用物件、賃貸物件のことまでお気軽にご相談下さい。詳細を見るとりあえず保存お問合せ(無料)
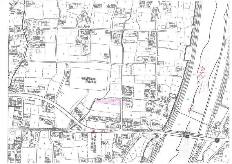
津山市押入(高野駅)住宅用地物件画像数5周辺画像数10動画数01,000万円坪単価:2.31万円/坪土地面積1435㎡坪数434.08坪私道負担面積なし土地権利所有権引渡条件現況渡し最適用途住宅用地建ぺい率60%容積率200%所在地津山市押入交通JR因美線 高野駅 徒歩15分不動産会社:(有)昴不動産津山線 / 津山 徒歩 15分宅地~事業用物件、賃貸物件のことまでお気軽にご相談下さい。詳細を見るとりあえず保存お問合せ(無料)
津山市押入(東津山駅)工場用地物件画像数6周辺画像数10動画数029,500万円坪単価:2.7万円/坪土地面積36155㎡坪数10936.83坪私道負担面積5500㎡ 共有持分 100/100土地権利所有権引渡条件現況渡し最適用途工場用地建ぺい率60%容積率200%所在地津山市押入交通JR姫新線(佐用~新見) 東津山駅 徒歩27分不動産会社:(有)昴不動産津山線 / 津山 徒歩 15分宅地~事業用物件、賃貸物件のことまでお気軽にご相談下さい。詳細を見るとりあえず保存お問合せ(無料)
津山市上横野(美作滝尾駅)住宅用地物件画像数5周辺画像数10動画数050万円坪単価:0.6万円/坪土地面積279㎡坪数84.39坪私道負担面積土地権利所有権引渡条件最適用途住宅用地建ぺい率60%容積率200%所在地津山市上横野交通JR因美線 美作滝尾駅 高田神社前 バス6分 徒歩4分不動産会社:(有)昴不動産津山線 / 津山 徒歩 15分宅地~事業用物件、賃貸物件のことまでお気軽にご相談下さい。詳細を見るとりあえず保存お問合せ(無料)
津山市南新座(津山駅)住宅用地物件画像数12周辺画像数10動画数02,990万円坪単価:9.37万円/坪土地面積1055.68㎡坪数319.34坪私道負担面積なし土地権利所有権引渡条件現況渡し最適用途住宅用地建ぺい率80%容積率400%所在地津山市南新座交通JR津山線 津山駅 奴通り商店街入口 バス5分 徒歩3分不動産会社:(有)昴不動産津山線 / 津山 徒歩 15分宅地~事業用物件、賃貸物件のことまでお気軽にご相談下さい。詳細を見るとりあえず保存お問合せ(無料)
津山市川崎(東津山駅)事業用地物件画像数13周辺画像数0動画数04,700万円坪単価:5.01万円/坪土地面積3107.19㎡坪数939.92坪私道負担面積土地権利所有権引渡条件現況渡し最適用途事業用地建ぺい率60%容積率200%所在地津山市川崎交通JR姫新線(佐用~新見) 東津山駅 東津山 バス415分 徒歩8分不動産会社:(有)昴不動産津山線 / 津山 徒歩 15分宅地~事業用物件、賃貸物件のことまでお気軽にご相談下さい。詳細を見るとりあえず保存お問合せ(無料)